查看完整案例


收藏

下载
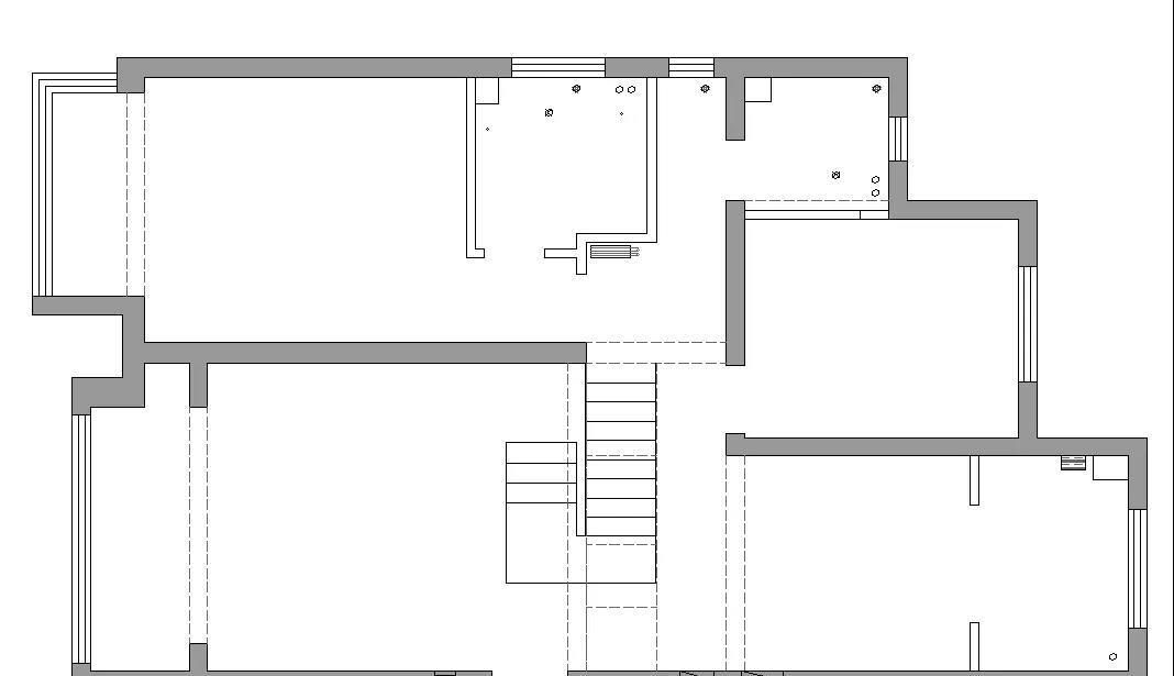
一层原貌
一层原貌
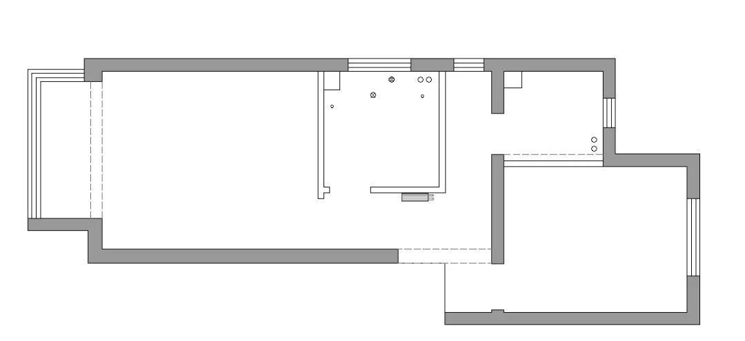
二层原貌
二层原貌
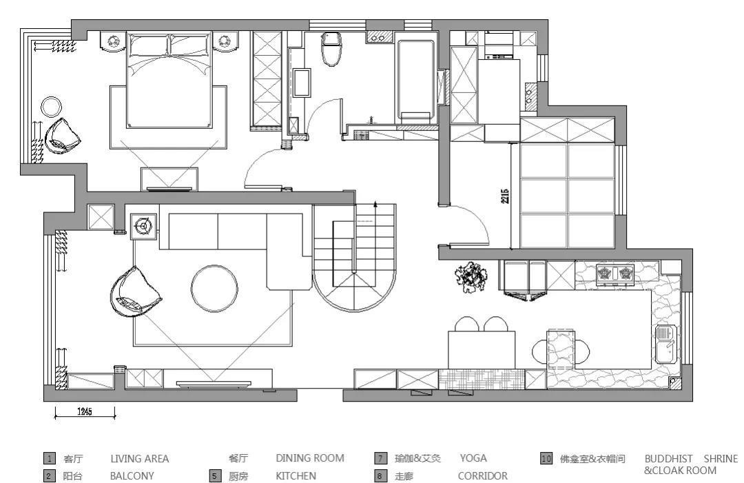
1F平面布局
原楼梯拆除,将楼梯整体后移,平台转角处改为弧形,减少笨重感,扩大入户位置的空间;厨房墙体拆除,成为敞开式厨房,厨房和餐厅融为一体;原有过道封堵,扩大卫生间空间的同时,做过道端景;将原有客卫改为功能间。
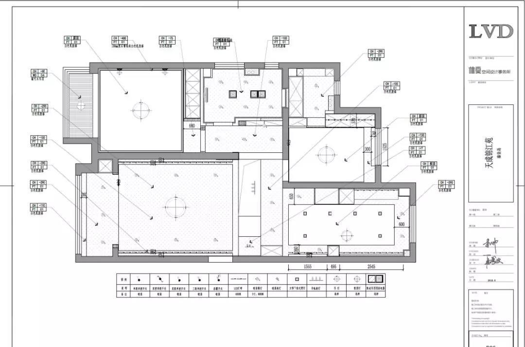
2F平面布局
将过道与卫生间之间隔墙后移,扩大过道的宽度,减少临窗一侧过道的进深,已提高采光度;卧室阳台抬高,既增加了层次感,又为练习瑜伽提供了专属位置;将原有客卫改为衣帽间。
【材料类】
【配饰类】
榻榻米
客服
消息
收藏
下载
最近


































