查看完整案例


收藏

下载
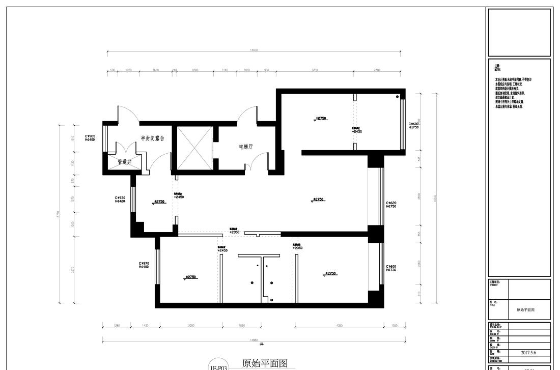
(平面图)户型分析:该户型厨房偏小无放置冰箱位置,餐厅对着卫生间门不舒服,双卫都不大放置预防后活动空间不足,右下角主卧室偏小,右上角客卧室阳台过大
(平面图)格局改造:结合空间使用需求,双卫改为单个卫生间,让卫生间和主卧室空间最大化,在不影响公共设施的前提下,将厨房与半封闭阳台的门外移合理扩充空间
(平面图)将客卧室阳台隔墙外移,扩大客卧室。
(平面图)对格局进行重新调整,利用电梯厅做了一个缓存区,将客餐厅墙面拉平增加储物同时美化空间,厨房外扩合理增加面积,双卫改单卫将卫生间卧室面积最大化
(立面图)无拉手式柜门的开启方式,很好的弱化了柜子的存在感,和田碧玉挂件提升了暗藏柜的装饰效果
(剖面图)背景剖面图
(实景图)遥望远山
(实景图)调整走廊隔断位置,立体抽象山水画使空间的层次更加丰富,让端景墙面活跃起来,营造一个舒适入户视觉感受,避免了入户见厕的尴尬
(实景图)空间中的栗色木线描边,为空间平添了一份精气神
(实景图)沙发后的暗藏门总能带给人意外的惊喜
(实景图)山水花鸟配饰间的对话,勾勒出一幅生机盎然的情景
(实景图)那一抹蓝让人的思绪产生无限遐想
(实景图)主卧室一角
(实景图)简雅的空间很容易让人放松身心,享受私人时间
(实景图)坐看云卷云舒,静听花开花落,任凭潮起潮落
(实景图)客卧一角
(实景图)安静的空间让人舒适
(实景图)读书储物娱乐的多功能空间
(表现图)客厅效果示意图
客服
消息
收藏
下载
最近





















