知末
知末
创作上传
VIP
收藏下载
登录 | 注册有礼

叠拼别墅色彩精致设计

2018/01/25 00:00:00
查看完整案例
微信扫一扫
收藏
下载
叠拼别墅色彩精致设计-0
餐厅 主要强调大面积色块 体现颜色的精致性
叠拼别墅色彩精致设计-2
进门玄关
叠拼别墅色彩精致设计-4
客厅
叠拼别墅色彩精致设计-6
二楼开放书房
叠拼别墅色彩精致设计-8
二楼主卧
叠拼别墅色彩精致设计-10
三楼主卧
叠拼别墅色彩精致设计-12
三楼主卧
叠拼别墅色彩精致设计-14
三楼书房
叠拼别墅色彩精致设计-16
地下平面家具尺寸布置图
叠拼别墅色彩精致设计-18
地下原始结构图
叠拼别墅色彩精致设计-20
二层平面家具尺寸布置图
叠拼别墅色彩精致设计-22
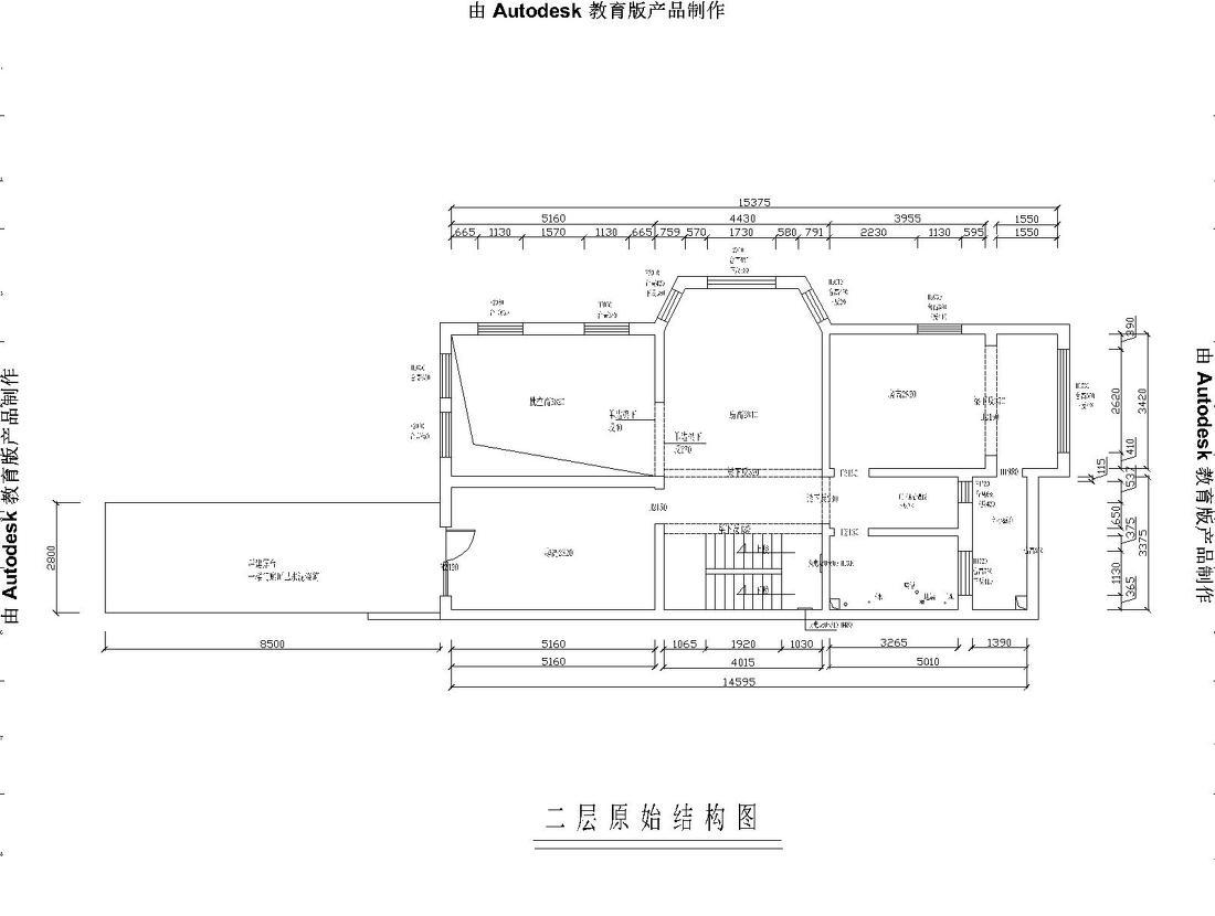
二层原始结构图
叠拼别墅色彩精致设计-24
三楼平面家具尺寸布置图
叠拼别墅色彩精致设计-26
三楼原始结构图
叠拼别墅色彩精致设计-28
一层平面家具布置尺寸图
叠拼别墅色彩精致设计-30
一层原始结构图
南京喵熊网络科技有限公司 苏ICP备18050492号-4知末 © 2018—2020 . All photos and trademark graphics are copyrighted by their owners.增值电信业务经营许可证(ICP)苏B2-20201444苏公网安备 32011302321234号
客服
消息
收藏
下载
最近