知末
知末
创作上传
VIP
收藏下载
登录 | 注册有礼
知末案例   /   商业空间   /   摄影店   /   以果设计

古北水镇长城照相馆

2019/03/14 00:00:00
查看完整案例
微信扫一扫
收藏
下载
古北水镇长城照相馆-0
长城照相馆街道
古北水镇长城照相馆-2
古北水镇长城照相馆-3
古北水镇夜景照片
古北水镇长城照相馆-5
设计元素古北水镇司马台长城
古北水镇长城照相馆-7
古北水镇长城照相馆-8
古北水镇长城照相馆-9
古北水镇长城照相馆-10
古北水镇长城照相馆-11
古北水镇长城照相馆-12
古北水镇长城照相馆-13
古北水镇长城照相馆-14
产品展示
古北水镇长城照相馆-16
产品展示
古北水镇长城照相馆-18
产品展示
古北水镇长城照相馆-20
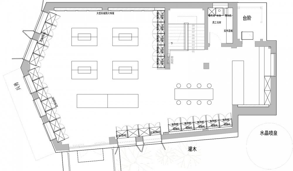
平面布置方案
南京喵熊网络科技有限公司 苏ICP备18050492号-4知末 © 2018—2020 . All photos and trademark graphics are copyrighted by their owners.增值电信业务经营许可证(ICP)苏B2-20201444苏公网安备 32011302321234号
客服
消息
收藏
下载
最近