知末
知末
创作上传
VIP
收藏下载
登录 | 注册有礼

首创国际半岛别墅

2020/02/20 00:00:00
查看完整案例
微信扫一扫
收藏
下载
首创国际半岛别墅-0
首创国际半岛别墅-1
首创国际半岛别墅-2
首创国际半岛别墅-3
首创国际半岛别墅-4
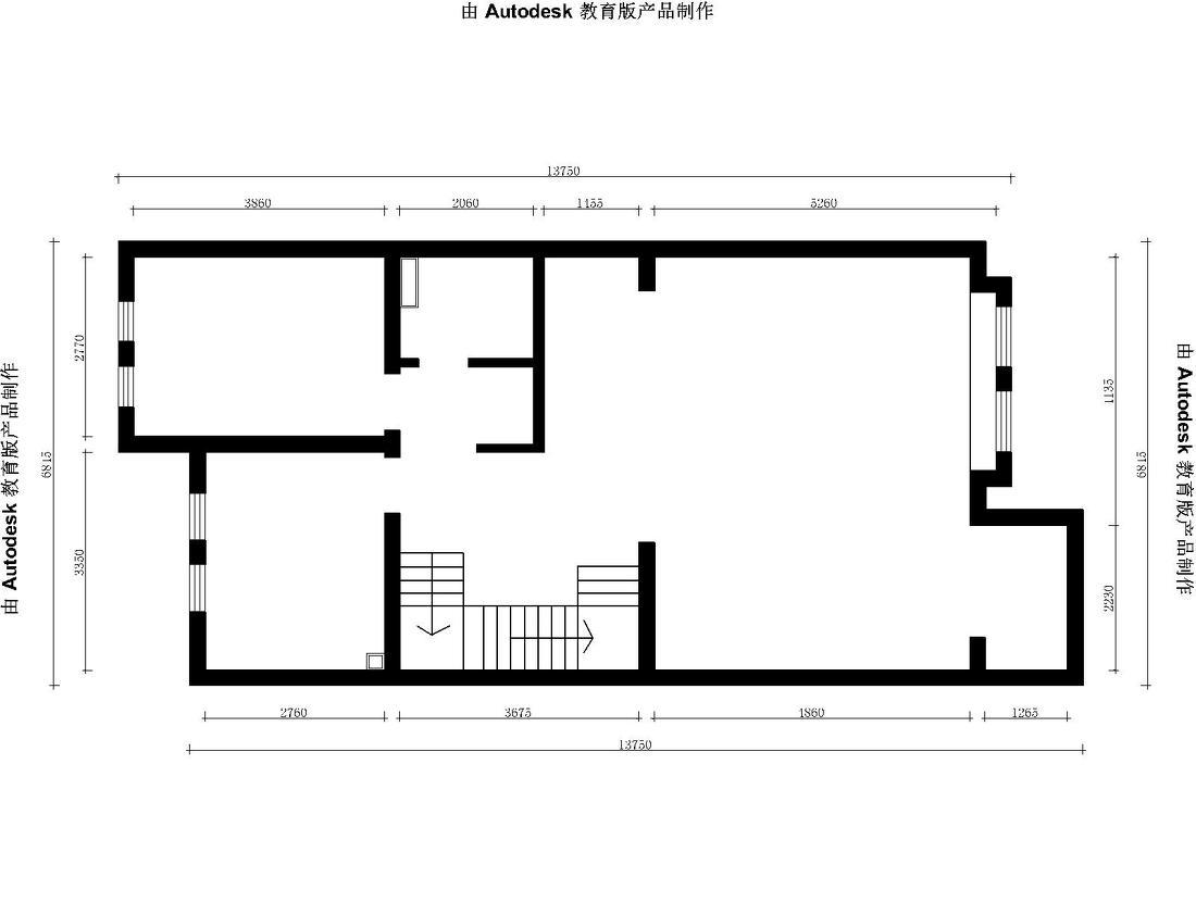
一层原始平面图
首创国际半岛别墅-6
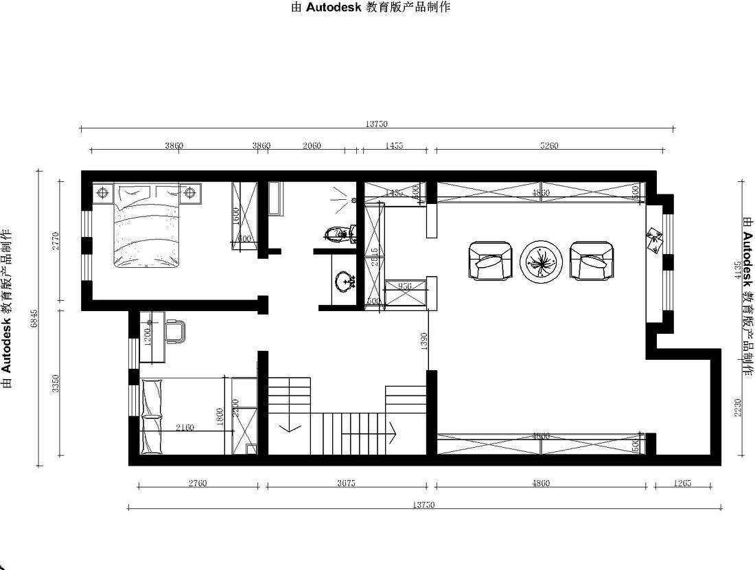
一层平面布置图
首创国际半岛别墅-8
二层原始平面图
首创国际半岛别墅-10
二层平面布置图
首创国际半岛别墅-12
三层平面图图
首创国际半岛别墅-14
三层平面布置图
南京喵熊网络科技有限公司 苏ICP备18050492号-4知末 © 2018—2020 . All photos and trademark graphics are copyrighted by their owners.增值电信业务经营许可证(ICP)苏B2-20201444苏公网安备 32011302321234号
客服
消息
收藏
下载
最近