查看完整案例


收藏

下载
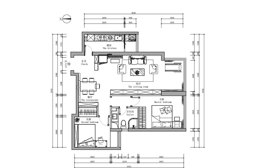
进门玄关、餐厅一直延伸到阳台,做满了储物柜,封闭式和开放式的都有,满足不同的收纳需求;特别是在客厅里设置投影仪,不设置电视墙,有了家庭电影院的感觉。
原木色餐桌椅,每天除沉浸在热闹喧哗的都市生活之外,现代人越来越开始追求返璞归真、亲近大自然的生活理念。原木色是最接近大自然的颜色,给人舒适放松的感觉
主卧面积不是特别大,没有做床头柜,一侧做了化妆台,另一次床头柜跟衣柜连接的,不用时可以收起来不占空间
次卧可以作为书房也可以作为儿童房,嵌入式衣柜满足收纳,还可以陪伴孩子学习。
卫生间干湿分离设计,保持干爽的同时也很美观
客服
消息
收藏
下载
最近









