查看完整案例

收藏

下载
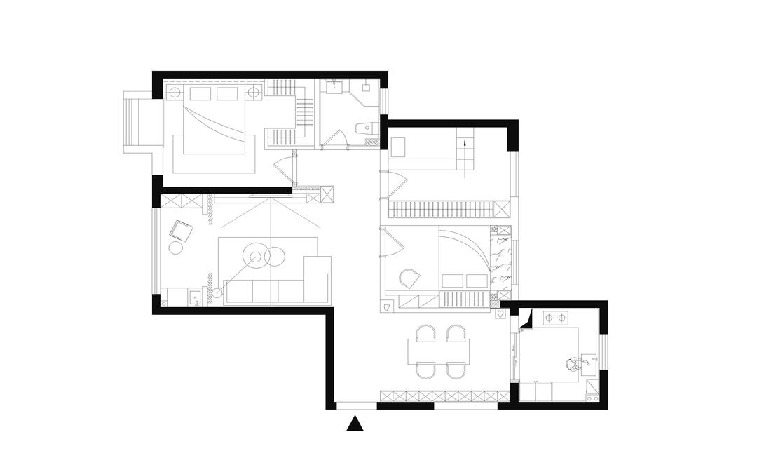
原始结构图
1.原户型只有2室,满足不了业主3室的要求。
2.原户型不是南北通透户型,拐拐绕绕比较多,不美观,不协调。
3.主卧面积小,储物空间不够,更满足不了业主想要一个小衣帽间的要求。
4.客厅面积较小,阳台相对过大,影响客厅活动空间,以及电视背景墙的美观度。
平面方案
1. 将客厅左侧的阳台墙体向外移,拓宽空间,做榻榻米和飘窗,规划出另一间书房兼具卧室功能。
2. 书房门向外移出后,跟次卧的门在同一条水平线上,并将次卧和主卧门设计成隐形门,形成了一体化的墙面,美观实用,拉长了过道空间,整个空间动线也很合理和流畅。 3. 将主卧右侧的墙向外移,拓宽主卧空间,缩小了卫生间面积。同时主卧拥有足够的面积腾出一个小衣帽间。
4. 将阳台和客厅交接的墙砸掉,将其打通连为一体,视觉上扩大了客厅的空间。
灯光洒落在艺术摆件上,栩栩如生,动感十足,仿佛这里就是它的位置。让人忍不住将注意点落在这里。#玄关
#客厅 各功能区划分分明,又相互交合而成,汇聚一个独具设计感的空间。这是入户尽收眼底的景象,客餐厅转角设置了一个景观,仿佛在表达主人对于客人的热情欢迎。
#客厅 高贵大气的大理石墙面,宛如一件浑然天成的艺术品,可以非常自然地融入到整个空间之中,在低调的奢华中宣示着自己独特的创意于个性。尤其也夜幕降临,开启背景墙灯带,暖暖的烘托着,此刻右侧开放式的装饰柜摆放着业主喜爱的软装,它们默默地成为了客厅的主角。#电视背景墙 #灯光布局
#客厅 沙发背景墙还是以简单的造型收场,木饰面板上墙仿佛和走廊墙互动了起来,客厅吊顶采用不复杂的一级吊顶,不会觉得压抑。落地灯柔和的曲线打破了客厅的宁静和沉闷。#沙发背景墙 #木饰面 #吊顶
#客厅 #大理石 #电视背景墙 白天在没有灯光烘托的大理石背景墙和右侧的装饰柜,显现出原本的质感美。
从餐厅视角望向客厅,美景尽收眼底。#客厅
#餐厅 厨餐厅是人间烟火味的地方,每个角落都充满着真实的味道。用大理石餐桌来升华空间格调,塑造一种既高贵又浪漫的就餐氛围,显得愈加年轻时尚、充满活力。#大理石餐桌 #灯
#餐厅 餐边柜正好处于入户的位置,它的出现让空间利用更加到位,避免面积的浪费。另外储物功能强大,靠门旁边的柜子还可以充当鞋柜,可以收纳很多物品。同时整洁台面,杂物收纳起来,保持#灯光布局 用餐空间的简雅美观。#餐边柜
#餐厅 从餐厅的视角一眼可视客厅,照顾到客厅的活动情况。#灯光布局 #大理石 #餐桌
#餐厅 #餐边柜 玻璃门的餐边柜让自家餐厅比酒店更有情调。#灯光布局
#餐厅 当今摆放绿植已成为一种风尚,让整个家鲜活起来,生机勃勃,仿佛置身于大自然的怀抱,使人在室内也有了回归自然的感觉。绿植在家居中已经成为不可或缺的一个软装时尚元素,让家里不再单调。#绿植
#厨房 半开放式厨房设计增加了空间的灵活性,L型厨房方便多人同时操作,让做饭成为一种生活乐趣和情调。
#隐形门 #走廊 走廊看起来没有过多的修饰,但是时时都透露着我们的一点小心机———“隐形门”,按照原始户型这里边边角角比较多,动线也不流畅,经过改动做了一个隐形门的设计,形成了一体化的墙面,美观实用,拉长了过道空间,整个空间动线也非常合理和流畅,成为走廊上最美的风景。意在向业主传达一种繁中有简的设计理念,也满足业主对于简单时尚的追求。
#床头背景墙 #卧室 #灯 #飘窗 在主卧里,亲密感体现在质感、色调、灯光、所传达出的微妙讯息。床头背景墙采用白色烤漆板加嵌入式金属条,底下暗藏了暖光源灯带。
#卧室 #床头背景墙 床两侧对称的吊灯造型,让卧室空间更有设计感,和床头背景形成一前一后的层次关系,呈现出一个简洁舒适的品质空间。#吊灯
#衣帽间 经过墙体改动后,为主卧空间“赢得”了一个U型衣帽间,就不占用空间,又给业主提供独立更衣区,这是多少万千少女的梦想啊。
#卫生间 卫生间采用悬浮式洗漱台,为了方便瞥见柜子角落里的残留脏污,可以让卫浴间的洗漱台“悬浮”起来,下不沾地,空隙够大,便于清扫,而且视野开阔,神情气爽。
#书房 #榻榻米 #储物柜 书房原本是一个阳台,经过我们的改造又多出一个多功能的房间,单一功能的书房已经无法满足需求。此案榻榻米的床体本身,床头储物柜和外侧的抽屉具有超强储物功能,让空间整洁干净,榻榻米尺寸是1.35m*2m。在书房设置榻榻米,除了可以提供强大的收纳需求,还能满足学习、工作以及临时客房等需求。
#书房 #榻榻米 #书桌 现场订做的书桌为学习、临时办公提供了安静的空间。原木色置物架和姜黄色背景与书桌形成紧密勾连,以不规则的分割形式呈现书房独一无二的风貌。书桌右侧的收纳抽屉可以达到及时收纳整理书桌保持干净整洁的功能。
#儿童房 #上下床 #卧室 儿童房的高低床采用了高饱和度的、五彩冰纷的色彩,很亮眼。右侧整墙向后移,做了整墙的嵌入式衣柜,实用美观两不误。
#阳台 阳台和客厅打通,融为一体,拓宽空间,阳台左侧为洗衣区,右侧订做了收纳柜用于放置拖把,吸尘器等清洁物品。
客服
消息
收藏
下载
最近


























