查看完整案例


收藏

下载
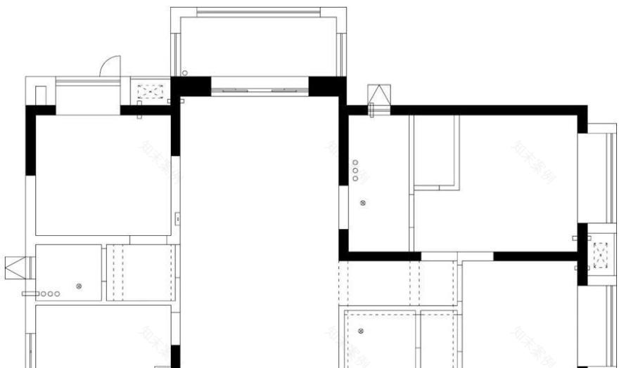
原始户型属于刚需户型,每个空间格局都是套房形式,空间偏小,衣帽间比较鸡肋;没有玄关,厨房餐厅空间比较局促。
1、卫生间拆除做全开放厨房,增加厨房操作空间,空出原有卫生间做家务间,洗烘放这里,释放阳台休闲空间;
2、餐厅位置过小,需要保证空间的通透性,综合考虑没有做独立玄关,因为是端户,条件允许门外设立鞋柜;
3、主卧改变动线,拆除鸡肋衣帽间,牺牲床位距离设施衣柜,满足储物需求且让进门口处视线开阔;原有卫生间门与入主卧门相冲(门打门),卫生间门往上延伸,避免床对卫生间门;
4、缩减卫生间空间,设置小孩房衣柜,让小孩房活动空间大。
进门口利用玄关与厨房地柜做一个小吧台功能,下面是储物,高出做导台。
餐边柜里加入家务柜,柜内设置洞洞板,清洁工具也能有条不紊的收纳。
哑光的水泥灰地砖进一步丰富了空间的质感层次和天然特性。
其实绿色涂料区域是水性黑板漆,等宝宝再大点,就可以在这里尽情的涂鸦了。
客厅的布局落落大方,浅灰色的沙发搭配着橘色懒人沙发以及弧形茶几,使空间温暖而又不失格调。
有时候小物件也可以让空间更显灵动。
没有繁杂装饰,低饱和度色彩和极简化的造型,在保证充足收纳空间的同时,依旧保有简洁的视觉感。用黄棕色来做局部跳跃,既丰富空间色彩视觉,又凸显时尚活力。
橱柜设计采取U型,更加贴合使用习惯,洗、切、炒在这里可以非常流畅的进行。简洁的造型下,是不浪费一丝空间的储物设计,让小家越住越大。
尺寸受限,所以利用打开门后斜对角空间,设置隐藏式书房入门,避开所谓斜门风水不好问题,也满足正常房门大小,
关门效果(现场手机拍摄)
书房抬高一步,与电视背景完美结合,隐藏式玻璃推拉门,让空间更显通透,满足不同时期的需求。
遮光性窗帘不是每个空间都适用,简单的的百叶帘让空间更显透亮。
俏皮无脸男与可爱的小龙猫齐聚,小空间有着大世界呢。
整个空间以留白与木质的温润抒写一副温暖的画卷,大面积的白以足够的包容与纯净,让居者可以安静的感受、发现生活本来的美。
小孩房放置排骨架床,宽度可根据需要进行伸缩;
小空间里的“大房子”,在宝宝成长过程中,房间不仅是舒适的睡眠空间,还是孩子的乐趣小天地。
主卫布置比较简约,洗漱台设置墙排下水,下方留空放置小推车储物,储放面膜等日常用品方便拿取;生活习惯不同,每个人收纳方式不一样,没有所谓的收纳,但是适合业主;
公卫设置一组储物柜作为设备间,合理利用空间,在放置净水软水设备以外还能设置层板放置其他生活杂物;浴帘的出现让本不宽敞的空间不显拥挤。
客服
消息
收藏
下载
最近

































