创作上传
VIP
收藏下载
登录 | 注册有礼
知末案例
/
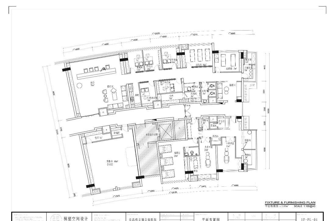
桐塑建筑设计
南昌雅美丽医疗整形机构
2019/11/25 00:00:00
查看完整案例
微信扫一扫
收藏
下载
分享
你可能还喜欢
换一换
Hospital psiquiátrico, Elsinor
多米尼加普图杰修道院表演中心 · 历史与创新的完美融合
瑞安中医院
医院大厅/办公室/会议室
某医院设计方案
美年中医院
新力.愉景湾——温存
层高 4.2 米的“枫景华庭”两口之家设计
客服
消息
收藏
下载
最近