知末
知末
创作上传
VIP
收藏下载
登录 | 注册有礼

睿视文化办公空间

2020/01/15 00:00:00
查看完整案例
微信扫一扫
收藏
下载
睿视文化办公空间-0
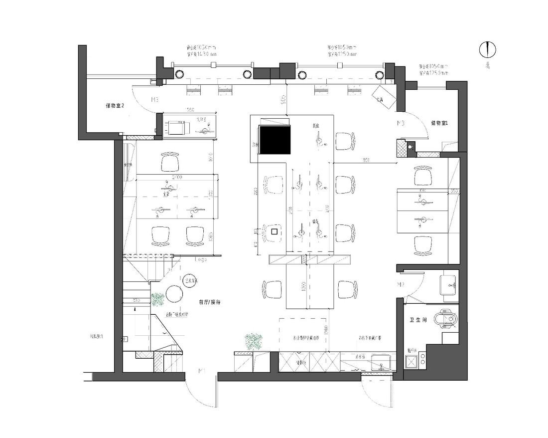
一层主要是员工开敞办公区,通过玻璃及通透书架做了空间划分。加设了2个库房,方便摄影仪器存放。除此之外办公区做了不少储物柜,方便办公文件存储。
睿视文化办公空间-2
二层是经理、会议、洽谈办公区。
睿视文化办公空间-4
二层楼梯口及开放洽谈区
睿视文化办公空间-6
二层经理办公室
睿视文化办公空间-8
一层楼梯口
睿视文化办公空间-10
进门Logo墙设计成竖纹艺术玻璃,是光线自由穿梭。
睿视文化办公空间-12
一层开敞办公区
睿视文化办公空间-14
活力四射的柠檬黄茶水柜台。
睿视文化办公空间-16
睿视文化办公空间-17
完工后实景照片。
睿视文化办公空间-19
完工后实景照片。
睿视文化办公空间-21
完工后实景照片。
睿视文化办公空间-23
完工后实景照片。
睿视文化办公空间-25
二层会议室完工后实景照片。
南京喵熊网络科技有限公司 苏ICP备18050492号-4知末 © 2018—2020 . All photos and trademark graphics are copyrighted by their owners.增值电信业务经营许可证(ICP)苏B2-20201444苏公网安备 32011302321234号
客服
消息
收藏
下载
最近