查看完整案例


收藏

下载
▽ 一层平面/地下层平面,ground floor/ underground floor
▽ 二层平面/屋顶平面,first floor/ roof floor
▽ 建筑立面,elevation
▽ 立面细部,elevation
▽ 剖面, section
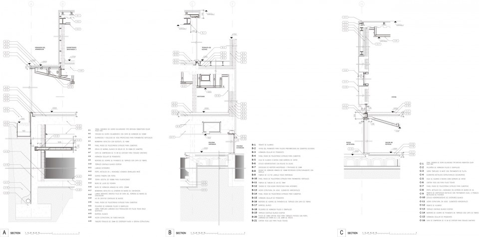
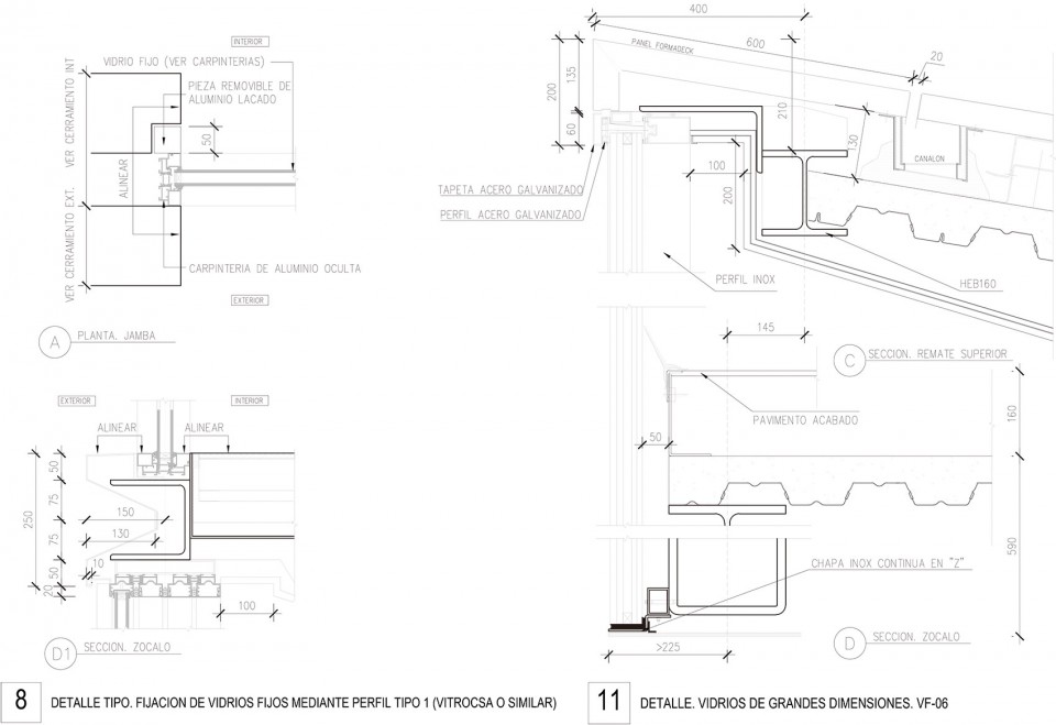
▽ 剖面细部,section details
Location: Madrid, Spain
Completion date: April 2015
Architect: Alfredo Munoz-Herrero
Area: 1500 m² – 16145 sqf
Plot Area: 3720 m² – 40000 sqf
Design Team: Ronan Bolaños, Felipe Samarán, Jesus Amezcua, Delia Rodriguez, Oscar Hernando, Luis Rocca, Daniel Jimenez, Carla Anton, Jordi Mas, Manel Rio, German Gil, Emiliano D’Incecco, Rodolfo Pomini, Jesus
Structures: Reyes, Ivan Sanchez, Mariluz Jimeno, Cristina Domecq
MEP: ABIBOO Architecture & Jorge Torrico + Alvaro Ruiz
Lighting: JG Ingenieros, Plenum Ingenieros
Furniture: Icon- Akari Ishii & Ilmio Design
Construction Project Manager: Abiboo Architecture & Ilmio Design
Carlos Garcia
Contractor: Contratas y Obras
Photography: Joao Morgado
MORE:
Abiboo Architecture
,更多请至:
客服
消息
收藏
下载
最近















































