查看完整案例


收藏

下载
来自
Atelier Zündel Cristea
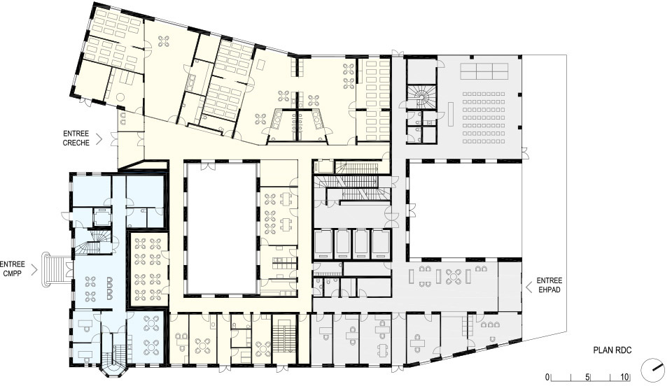
这栋位于巴黎14区,占地3公顷的建筑师养老院+托儿所的建筑集合体可为98位老人提供养老服务,为64个儿童提供托儿所服务。该项目推翻场地上原有的大部分建筑而重建,属于整个改造项目的第一期,建筑中心有两个内院,第四层体量向后回缩,形成舒适宽大的通廊,这一层的深暖色与建筑周身银色外观形成鲜明对比,点活了整个造型。所有老人居住的房间都沿外墙布置,每间均有自然光和外景。内部的走廊和公共空间因为内庭院的存在而变得光明。
PROGRAMME
Residential care-home for the elderly (98 places), nursing home (66 places), nursery (64 places), children’s healthcare centre and car park (44 places)
▼ 外观
▼ 外观
From a suburban hospital to an urban community healthcare centre
The collection of buildings that makes up Notre-Dame de Bon Secours is to be found at 68 Rue des Plantes, in southern Paris’ 14th arrondissement. Bordered to the south and the east respectively by Rue Giordano and Rue des Plantes, the site has an area of almost three hectares.
The heritage of this site is a long history of building that began in 1875. The first wings of the hospital and the chapel were soon joined by new buildings in the same architectural style, following an orthogonal plan along two axes, alternating buildings and garden areas. In 1985, demolitions and new constructions broke the architectural coherence and upset the reading and use of the site. The recent transfer of the maternity unit to another hospital (Saint Joseph) provided the opportunity for the organisation to convert the Rue des Plantes site into a leading community healthcare centre, as well as to re-establish a harmonious and functional architectural ensemble.
The transformation of the Notre-Dame de Bon Secours site reflects the evolution of healthcare; from the late 19th-century linear building, to the broad floors of modern medical centres.
▼第四层体量向后回缩,形成舒适宽大的通廊。建筑有两个内院。
▼第四层通廊深暖色与建筑周身银色外观形成鲜明对比。
▼第四层的通廊与露台
A project in two phases
Following the demolition of the most problematic buildings on the site, including the maternity wing, a large building operation was planned in two phases so as to manage re-housing and building on an occupied site.
Phase one, now completed, comprised the construction of a new building to house a 98-bed residential care-home for the elderly and a 64-place nursery. It is built on the site of the demolished maternity wing, in the south-west corner of the plot, on the Rue Giordano Bruno side. The project also involved the renovation of the street-front building of the old nursing school, known as the ‘château’, to house a new children’s healthcare centre. The overall programme covers a total surface area of 14,000 square meters.
Phase two, due for completion in 2017, will see the construction of a nursing home for disabled patients at the northern corner of the site by the Rue des Plantes.
▼第四层的通廊与露台。左侧是原有老建筑,新建筑直接接壤原有剩余的老建筑。
▼底层托儿所
▼ 走廊联系各个老人护理用房,内院为走廊带来明亮的自然光。
▼第四层的通廊
带露台的公共休息区
Photographer: Sergio Grazia
CLIENT
Résidences sociales de France (RSF), a subsidiary of the group I3F
OCCUPANT
Association Notre-Dame de Bon Secours
DESIGN TEAM
Architects: Atelier Zündel Cristea
Engineers: Igrec Ingénierie (general engineering)Landscape architect: Atelier Villes et PaysagesConsultants: VS-A (facade engineers)Acoustique & Conseil (acoustic engineers)SCHEDULE
Competition: 2009
Design studies: 18 months
Work on site begins: July 2012
Completion dates:Phase 1: November 2014 – Phase 2: 2017 (provisional)
SITE
Surface area of site: 29,000 sq m
Specific urban regulations/ listed site and protected inner-city green space / Specific climatic and geological constraints
COSTApprox 28.6 MAREA
Footprint: 27,000 sq m
Useable surface area and circulation space: Useable surface area: 8,460 sq m / Circulation: 3,312 sq m
SUSTAINABLE DEVELOPMENT PROGRAMME
External insulation, AHU ventilation, low-energy lighting.
Energy production: linked to the Parisian urban heating network with water pre-heated via condensate retrieval and coupled with a HelioPAC system for solar-heated hot water.
SUSTAINABILITY CERTIFICATION
BBC Effinergie, H&E Ehpad
MORE:Atelier Zündel Cristea
客服
消息
收藏
下载
最近





















