查看完整案例


收藏

下载
整体空间主要是以深色为主,有深厚沉稳的底蕴。装饰造型主要采用硬朗简洁的直线条,空间具有层次感。既使得中式家具古典、质朴的内涵显现,又符合现代人追求的时尚感、实用性。 材料:福乐阁墙漆、墙纸、石膏板吊顶、 蒙娜丽莎抛釉砖,实木垭口套。
实创装饰【完美家装】红杉湾别墅装修—石家庄装修公司-客厅电视背景墙装修效果图
实创装饰【完美家装】红杉湾别墅装修—石家庄装修公司-餐厅装修效果图
将传统的元素赋予现代的设计中,让人既体会到现代设计的科技性,又体会到传统的中国韵味 ,现代抛釉的中国话瓷砖与传统中式家具完美的结合。 材料:蒙娜丽莎抛釉砖、福乐阁墙漆、巴赫曼实木复合门、定制家居。
地面的拼花与八边形的吊顶形成呼应,吊顶装饰为简约大气得空间增添了不少光彩,能营造出丰富多彩的室内空间艺术形象 材料:蒙娜丽莎抛釉砖、福乐阁墙漆、巴赫曼实木复合门、定制家居。
实创装饰【完美家装】红杉湾别墅装修—石家庄装修公司-客厅整体装修效果图
实创装饰【完美家装】红杉湾别墅装修—石家庄装修公司-客厅整体装修效果图
走廊作为区域划分的主要衔接部分,体现住宅的尊贵与独一无二性,从创意上以传统的理念,有加上时尚与未来,大胆引入材质对比与区域衔接,更好的体现主人的生活品味。 材料:蒙娜丽莎抛釉砖、福乐阁墙漆、巴赫曼实木复合门、定制家居。
实创装饰【完美家装】红杉湾别墅装修—石家庄装修公司-休闲区效果图
中式茶桌,带给我们一种说不出得安宁、祥和感,让身处喧闹城市的我们,寻找到了另一片世外桃源。 材料:蒙娜丽莎抛釉砖、福乐阁墙漆、巴赫曼实木复合门、定制家居。
床头蓝绿色的壁纸让客房充满了温馨之感,打破了中式的沉闷,白色的混油材质也一改中式传统的深色混油材质。年轻时尚。 材料:蒙娜丽莎抛釉砖、福乐阁墙漆、巴赫曼实木复合门、定制家居。
电视墙的设计采用了整面天然大理石的大纹理,体现出整个空间的大气与磅礴,虽然没有过多亮色的点缀,体现主人的低调与品味。 材料:天然大理石、墙纸、混油木饰面。
软包与中式花格的结合,是整个卧室温馨,自然,简洁大方。 材料:蒙娜丽莎抛釉砖、福乐阁墙漆、巴赫曼实木复合门、定制家居。
实创装饰【完美家装】红杉湾别墅装修—石家庄装修公司-原始户型结构图
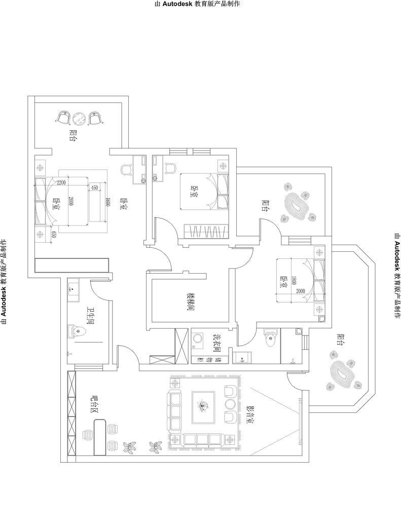
实创装饰【完美家装】红杉湾别墅装修—石家庄装修公司-户型平面方案布局图
实创装饰【完美家装】红杉湾别墅装修—石家庄装修公司-原始户型结构图
实创装饰【完美家装】红杉湾别墅装修—石家庄装修公司-户型平面方案布局图
客服
消息
收藏
下载
最近



















