查看完整案例


收藏

下载
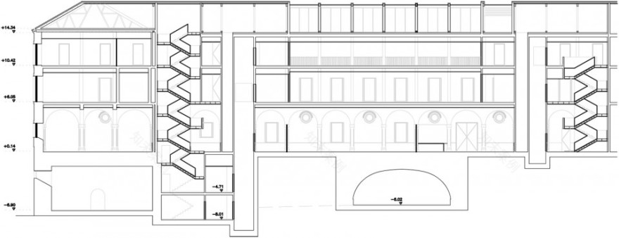
▼档案室剖面,City Archive section
▼轴侧结构图,The Axonom
Architects:Carlos de Riaño Lozano
Collaborators:Almudena Peralta Quintana,Rebeca Hurtado Díaz
Technical architects:María del Hierro,Luis García Cebadera
Promoter:Ayuntamiento de Madrid,Área de Las Artes
Coordinación de proyecto y obra
Juan José Echeverría Jiménez. Coordinador General de Patrimonio Cultural
Carmen Rojas Cerro. Directora General de Patrimonio Histórico
Supervisión y seguimiento: Dirección General de Patrimonio Histórico
María José Rodríguez Relaño, arquitecta supervisora
Pepa Ávila Serrano, arquitecta supervisora
Javier Aguilera Rojas, arquitecto supervisor
Location:Calle Conde Duque s/n, Madrid
Area:29.262 m2
Structure:OTEP INTERNACIONAL
Engineering facilities:JG Instalaciones / Alvaro Zamora
Constructor:EDHINOR, U.T.E. F. MOLINA – GEOCISA, PECSA, F. MOLINA, CPA y VIAS
Lighting:INTERVENTO
MORE:
Carlos de Riaño Lozano
,更多关于他们:
.
客服
消息
收藏
下载
最近



















































