查看完整案例


收藏

下载
“原河名墅”位于省会石家庄“中央公园区”核心,太平河的北岸,拥有优良的生态环境。
原河名墅首倡“新都市自然主义”产品主张,是真正意义上的城市别墅、第一居所。
本案的设计从简单到繁杂、从整体到局部,精雕细琢,都给人一丝不苟的印象。
一方面保留了材质、色彩的本真,同时又摒弃了过于复杂的肌理和装饰,简化了线条,将怀古的浪漫情怀与现代人对生活的需求相结合,兼容华贵典雅与时尚现代,反映出后现代个性化的美学观点和文化品位,真正做到简约而不简单。
在设计上,墙面大面积的使用了古典欧式色彩的壁纸配合经过提炼的欧式线条。
地面采用石材拼花,用石材天然的纹理和自然的色彩来修饰人工的痕迹。
使客厅和餐厅的那种奢华、档次和品位毫无保留地表现出来。
“原河名墅”位于省会石家庄“中央公园区”核心,太平河的北岸,拥有优良的生态环境。
原河名墅首倡“新都市自然主义”产品主张,是真正意义上的城市别墅、第一居所。
本案的设计从简单到繁杂、从整体到局部,精雕细琢,都给人一丝不苟的印象。
一方面保留了材质、色彩的本真,同时又摒弃了过于复杂的肌理和装饰,简化了线条,将怀古的浪漫情怀与现代人对生活的需求相结合,兼容华贵典雅与时尚现代,反映出后现代个性化的美学观点和文化品位,真正做到简约而不简单。
在设计上,墙面大面积的使用了古典欧式色彩的壁纸配合经过提炼的欧式线条。
地面采用石材拼花,用石材天然的纹理和自然的色彩来修饰人工的痕迹。
使客厅和餐厅的那种奢华、档次和品位毫无保留地表现出来。
“原河名墅”位于省会石家庄“中央公园区”核心,太平河的北岸,拥有优良的生态环境。
原河名墅首倡“新都市自然主义”产品主张,是真正意义上的城市别墅、第一居所。
本案的设计从简单到繁杂、从整体到局部,精雕细琢,都给人一丝不苟的印象。一方面保留了材质、色彩的本真,同时又摒弃了过于复杂的肌理和装饰,简化了线条,将怀古的浪漫情怀与现代人对生活的需求相结合,兼容华贵典雅与时尚现代,反映出后现代个性化的美学观点和文化品位,真正做到简约而不简单。
在设计上,墙面大面积的使用了古典欧式色彩的壁纸配合经过提炼的欧式线条。地面采用石材拼花,用石材天然的纹理和自然的色彩来修饰人工的痕迹。使客厅和餐厅的那种奢华、档次和品位毫无保留地表现出来。
“原河名墅”位于省会石家庄“中央公园区”核心,太平河的北岸,拥有优良的生态环境。
原河名墅首倡“新都市自然主义”产品主张,是真正意义上的城市别墅、第一居所。
本案的设计从简单到繁杂、从整体到局部,精雕细琢,都给人一丝不苟的印象。
一方面保留了材质、色彩的本真,同时又摒弃了过于复杂的肌理和装饰,简化了线条,将怀古的浪漫情怀与现代人对生活的需求相结合,兼容华贵典雅与时尚现代,反映出后现代个性化的美学观点和文化品位,真正做到简约而不简单。
在设计上,墙面大面积的使用了古典欧式色彩的壁纸配合经过提炼的欧式线条。
地面采用石材拼花,用石材天然的纹理和自然的色彩来修饰人工的痕迹。
使客厅和餐厅的那种奢华、档次和品位毫无保留地表现出来。
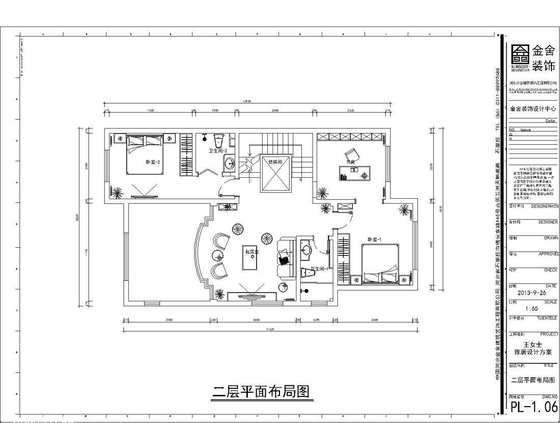
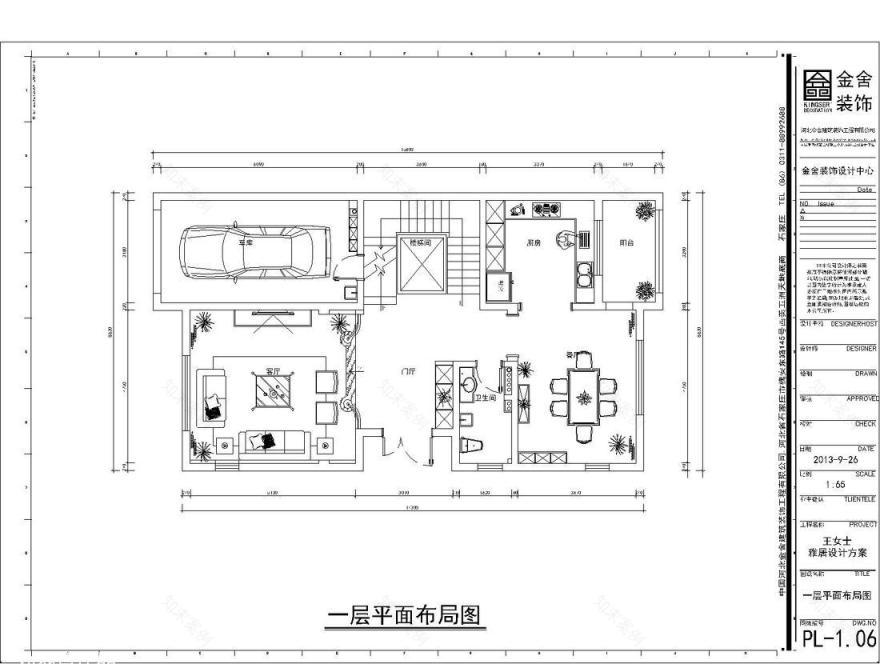
“原河名墅”位于省会石家庄“中央公园区”核心,太平河的北岸,拥有优良的生态环境,原河名墅首倡“新都市自然主义”产品主张,是真正意义上的城市别墅、第一居所。本案的设计从简单到繁杂、从整体到局部,精雕细琢,都给人一丝不苟的印象。一方面保留了材质、色彩的本真,同时又摒弃了过于复杂的肌理和装饰,简化了线条,将怀古的浪漫情怀与现代人对生活的需求相结合,兼容华贵典雅与时尚现代,反映出后现代个性化的美学观点和文化品位,真正做到简约而不简单。在设计上,墙面大面积的使用了古典欧式色彩的壁纸配合经过提炼的欧式线条。地面采用石材拼花,用石材天然的纹理和自然的色彩来修饰人工的痕迹。使客厅和餐厅的那种奢华、档次和品位毫无保留地表现出来。
“原河名墅”位于省会石家庄“中央公园区”核心,太平河的北岸,拥有优良的生态环境。
原河名墅首倡“新都市自然主义”产品主张,是真正意义上的城市别墅、第一居所。
本案的设计从简单到繁杂、从整体到局部,精雕细琢,都给人一丝不苟的印象。一方面保留了材质、色彩的本真,同时又摒弃了过于复杂的肌理和装饰,简化了线条,将怀古的浪漫情怀与现代人对生活的需求相结合,兼容华贵典雅与时尚现代,反映出后现代个性化的美学观点和文化品位,真正做到简约而不简单。
在设计上,墙面大面积的使用了古典欧式色彩的壁纸配合经过提炼的欧式线条。地面采用石材拼花,用石材天然的纹理和自然的色彩来修饰人工的痕迹。使客厅和餐厅的那种奢华、档次和品位毫无保留地表现出来。
“原河名墅”位于省会石家庄“中央公园区”核心,太平河的北岸,拥有优良的生态环境,原河名墅首倡“新都市自然主义”产品主张,是真正意义上的城市别墅、第一居所。本案的设计从简单到繁杂、从整体到局部,精雕细琢,都给人一丝不苟的印象。一方面保留了材质、色彩的本真,同时又摒弃了过于复杂的肌理和装饰,简化了线条,将怀古的浪漫情怀与现代人对生活的需求相结合,兼容华贵典雅与时尚现代,反映出后现代个性化的美学观点和文化品位,真正做到简约而不简单。在设计上,墙面大面积的使用了古典欧式色彩的壁纸配合经过提炼的欧式线条。地面采用石材拼花,用石材天然的纹理和自然的色彩来修饰人工的痕迹。使客厅和餐厅的那种奢华、档次和品位毫无保留地表现出来。
“原河名墅”位于省会石家庄“中央公园区”核心,太平河的北岸,拥有优良的生态环境,原河名墅首倡“新都市自然主义”产品主张,是真正意义上的城市别墅、第一居所。本案的设计从简单到繁杂、从整体到局部,精雕细琢,都给人一丝不苟的印象。一方面保留了材质、色彩的本真,同时又摒弃了过于复杂的肌理和装饰,简化了线条,将怀古的浪漫情怀与现代人对生活的需求相结合,兼容华贵典雅与时尚现代,反映出后现代个性化的美学观点和文化品位,真正做到简约而不简单。在设计上,墙面大面积的使用了古典欧式色彩的壁纸配合经过提炼的欧式线条。地面采用石材拼花,用石材天然的纹理和自然的色彩来修饰人工的痕迹。使客厅和餐厅的那种奢华、档次和品位毫无保留地表现出来。
“原河名墅”位于省会石家庄“中央公园区”核心,太平河的北岸,拥有优良的生态环境。
原河名墅首倡“新都市自然主义”产品主张,是真正意义上的城市别墅、第一居所。
本案的设计从简单到繁杂、从整体到局部,精雕细琢,都给人一丝不苟的印象。
一方面保留了材质、色彩的本真,同时又摒弃了过于复杂的肌理和装饰,简化了线条,将怀古的浪漫情怀与现代人对生活的需求相结合,兼容华贵典雅与时尚现代,反映出后现代个性化的美学观点和文化品位,真正做到简约而不简单。
在设计上,墙面大面积的使用了古典欧式色彩的壁纸配合经过提炼的欧式线条。
地面采用石材拼花,用石材天然的纹理和自然的色彩来修饰人工的痕迹。
使客厅和餐厅的那种奢华、档次和品位毫无保留地表现出来。
客服
消息
收藏
下载
最近











