查看完整案例


收藏

下载
来自
De Smet Vermeulen architecten
比利时弗兰德城市与郊外的对立日益严峻,城市化的污染也侵蚀到项目所在地佛兰芒乡村。城市郊区化让城市与乡村的界限模糊,而成为大城市卫星城市的弗兰德也失去田园风光。在这样一种大背景下,Braeckman-Staels别墅的委托到来,业主和建筑师都希望在场地上实现一种田园风景式的质朴生活场所。
PASTORAL MEMORIES, revisited
The opposition between cities and countryside in Flanders has increasingly become a mental rather than a physical one. A longstanding anti-urban policy has led to a thorough contamination – i.e. urbanization – of the Flemish countryside. Multiple networks connect locations irrespective of their urban or rural status, enabling ever more frequent movements, eroding physical boundaries, merging it all into a semi-urban pattern we call the Nebular City.
Inside this Nebular City, rurality has become less a fact than a choice, less a self-evident tradition than a mental construction. It is the architect’s task to design this mental construction.
The chaotic, compartmentalized landscape offers many opportunities for such choices. Compromised rurality rebounds in some of its compartments. The building site for our villa Braeckman-Staels is an example of this. The embedded orchard with a view of a windmill presents a striking condensed image of rurality that one would seek in vain on the street side. This could be many places, but it happens to be Sint-Martens-Latem, a village renowned as a pied-à-terre for the Flemish expressionist painters of rural life. Restrictive building regulations, nourished by former-day artistic icons uphold a self-image that is increasingly grotesque.
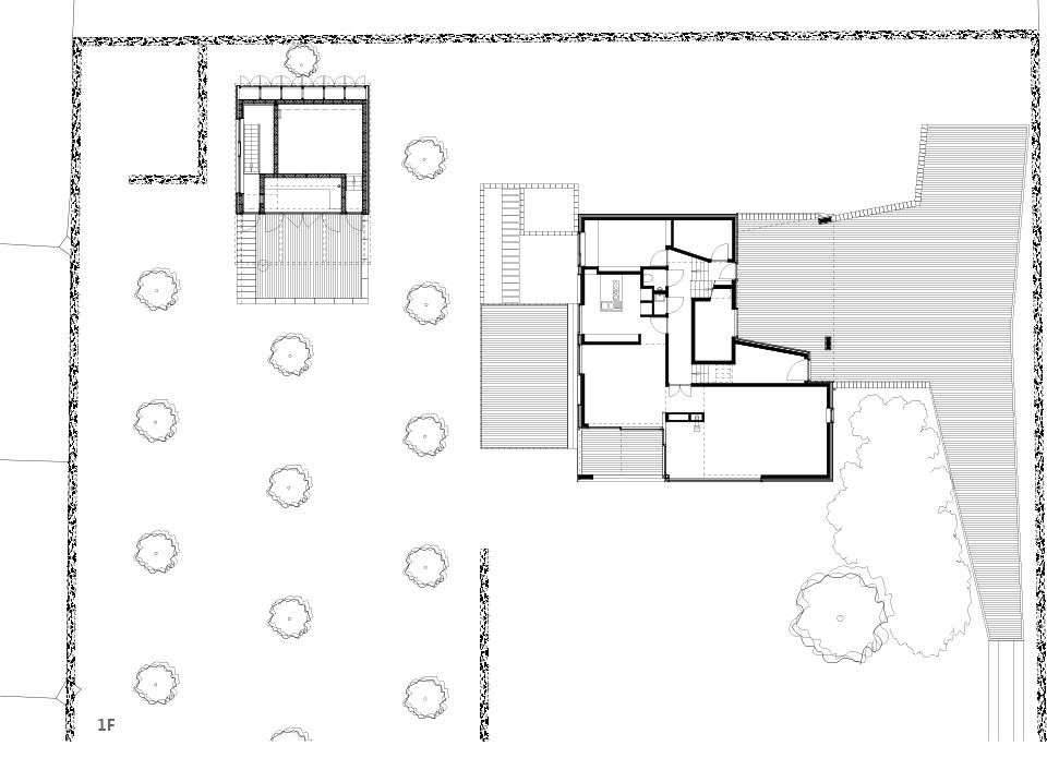
▼场地中两座建筑。红色建筑为十年前建成的老建筑,原木色的建筑为后期扩建建筑。
建筑师和业主共同寻找过往回忆,试图建立一个紧凑又复合的项目。项目最初只有一栋主楼,其采用了砖混结构,为了更好的热工性,建筑外皮包裹了一层木表皮。虽然房屋的几何形状明显,但在建成后十年中,房屋在自然中慢慢风化,与花园植物共同成长,成为田园牧歌和谐的一份子。十年后,又再次扩建了另外一栋稍小的建筑,利用地下做出一个独立出入口和温暖火炉的音乐练习空间,在地面层和二楼设置复式阁楼空间的客房。
低调,舒适无比,亲近自然的田园生活在比利时这一处实现。
Opposing this restrictive identity, we drew upon the unsettled transformative power of personal recollections shared by clients and architects. Memories of American country houses “where the living was easy” triggered the design. This resulted in a house that doesn’t emphasize its frontality and seems both compact and composite. The spiralling plan slowly ascends from the slightly sunken entrance level and offers both self-contained rooms and composite spatial views. The shifting rooftops mark both the exterior and the interior; in a few rooms, such as the porch and the bathroom, the rooftop appears to be central to the room.
The house is built in brick and concrete, for better thermic performance, and cladded with lightweight timber that fits the long spans in the facades. Untreated copper for the roofs and pipes, cooked paint for the timber cladding and untreated hardwood windows, some sliding in front of the timber, are meant to slowly blend by weathering. Geometric eccentricities gradually blur into a vaguely pastoral idyl.
▼ 老建筑采用砖混结构,为了更好的热工性,建筑外皮包裹了一层木表皮。
▼虽然老房屋的几何形状明显,但在建成后十年中,房屋在自然中慢慢风化,与花园植物共同成长,成为田园牧歌和谐的一份子。
▼ 新增建筑
▼新增建筑
Ten years later, the idyl has grown into a full-bodied and well differentiated garden. A garden cottage has been added, downscaling, as an addition to a farmyard would, the design choices of the master house to a more subordinate building type. For the roof, corrugated steel was chosen over copper, also due to increased environmental awareness. The concrete cellar is topped with a wooden frame construction. The rooms of the cottage – a toolshed, a chicken nursery, a cellar for playing electronically
amplified music and a hobby room – have separate entrances and no internal links. The tool shed doors open widely onto a generous outdoor workspace, sheltered by the protruding roof. Ladders connect both the cellar and the hobby room with tiny attics, each containing a sleeping alcove. All this makes the cottage compact and elementary and leaves the villa’s comfort unrivaled. A rain barrel and a woodstove provide it with autonomy.
▼新增建筑
▼ 新增建筑
▼ 拥有独立出入口的地下音乐室空间。
▼地下音乐室拥有温暖的火炉 & 通往出口的楼梯
▼ 复式阁楼客房
design: De Smet Vermeulen architecten
Axel Cayman, Henk De Smet, Marleen Goethals, Tom Thijs, Paul
Vermeulen, 1996-2000
Garden cottage Braeckman-Staels, Sint-Martens-Latem
Design: De Smet Vermeulen architecten
Henk De Smet, Nikolaj De Meulder, Paul Vermeulen, 2011-2013
English Text & Drawings © De Smet Vermeulen architecten
Photos © Dennis De Smet
MORE:
De Smet Vermeulen architecten
,更多请至:
客服
消息
收藏
下载
最近



















