查看完整案例


收藏

下载
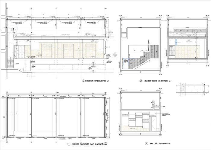
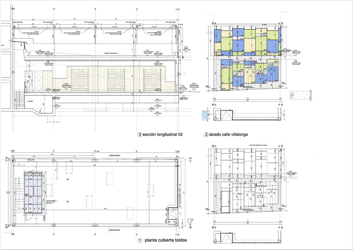
这个色彩斑斓的多用途教室就紧邻着学校。教室的长宽比是4:1,一层是室内教室,二层是室外的儿童活动场地。立面上的玻璃和楼梯天窗上的玻璃都是彩色玻璃,他们将空间渲染得缤纷肆意。屋顶的活动场地安装了可移动式遮阳系统。室内的材料多为吸音材料,这是针对儿童使用者的考虑,天花以及墙面还有地板都具备吸音特性。
CHROMATIC PLAY
INDEXCARD:
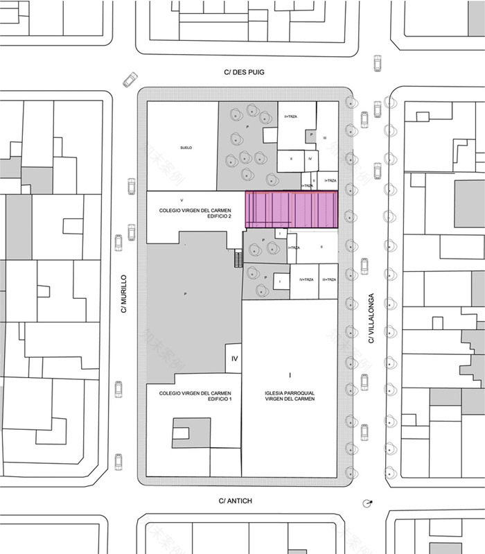
• Type: Multipurpose classroom primary school
• Location: Housing development in Bendinat, Mallorca
• Client: Hermanos de la Sagrada Familia (SAFA)
• Constractor: NACAM s.l.
• Surface: 167,98 m2
• Contract value: 208.198,20 €
• Data: Completed September 2011
REPORT:
The project responds to the idea of extending the school with a multipurpose room in an adjacent plot which should be connected internally and have an independent entrance from the street.
The plot is rectangular in a 4:1 proportion and the aim is to have a whole 7 meter span open space with natural light and crossed ventilation. In order to achieve that the façade will have to provide as much light as possible and skylights will need to be incorporated in the roofing and on top of the internal staircase. The multipurpose room will be connected in two different levels with the school, at ground level through an ascendant staircase and at roofing level through a descending ramp.
The floor plan of the new mulipurpose room is going to be organised from the partition wall to the street with an area to place the ascending staircase, a service area with toilets and finally the playing space. The interior is dyed by the chromatic play of the coloured glassed façade which allows cross ventilation through openable windows inserted in it in connection with the coloured skylight on top of the staircase. It also gives privacy to the interior and dyes the sidewalk with its reflections.
The roofing area is used as exterior playground for the children. This area is designed to be sun protected by a movable fabric canopy that projects shadow on it, it is hold up on cables and a light steel structure.
MORE:
Juana Canet arquitectos
,更多请至:
客服
消息
收藏
下载
最近














