知末
知末
创作上传
VIP
收藏下载
登录 | 注册有礼
知末案例   /   家装空间   /   平层

童话镇冯妹子黄铜少女心家居设计

2019/04/22 00:00:00
查看完整案例
微信扫一扫
收藏
下载
童话镇冯妹子黄铜少女心家居设计-0
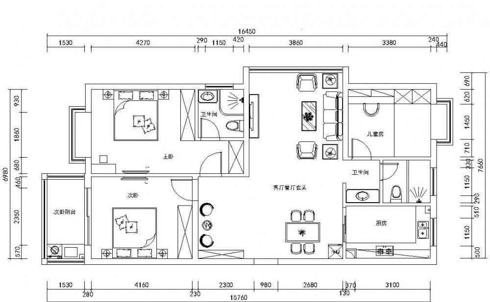
平面布置
童话镇冯妹子黄铜少女心家居设计-2
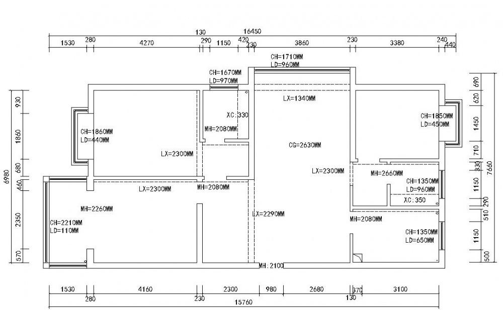
原始户型
童话镇冯妹子黄铜少女心家居设计-4
冯妹子一定要放的镜子
童话镇冯妹子黄铜少女心家居设计-6
精致的梳妆台
童话镇冯妹子黄铜少女心家居设计-8
童话镇冯妹子黄铜少女心家居设计-9
童话镇冯妹子黄铜少女心家居设计-10
童话镇冯妹子黄铜少女心家居设计-11
童话镇冯妹子黄铜少女心家居设计-12
童话镇冯妹子黄铜少女心家居设计-13
借客户家拍个写真,心里美滋滋,右边就是冯妹子啦
童话镇冯妹子黄铜少女心家居设计-15
横梁处理成拱形的啦
童话镇冯妹子黄铜少女心家居设计-17
冯妹子喜欢黄铜家具,灯,绿植,置物架都是的
童话镇冯妹子黄铜少女心家居设计-19
冯妹子的粉红少女心
童话镇冯妹子黄铜少女心家居设计-21
黄铜腿的梳妆台很漂亮
童话镇冯妹子黄铜少女心家居设计-23
以后的儿童房,衣柜做的模压门
童话镇冯妹子黄铜少女心家居设计-25
小白砖,配黄铜的镜子水龙头等五金件
童话镇冯妹子黄铜少女心家居设计-27
地面铺的黑色六角砖,定制的台盆
童话镇冯妹子黄铜少女心家居设计-29
墙面白色格子砖,地面是不规则小花砖,蓝色的橱柜,素净又优雅
南京喵熊网络科技有限公司 苏ICP备18050492号-4知末 © 2018—2020 . All photos and trademark graphics are copyrighted by their owners.增值电信业务经营许可证(ICP)苏B2-20201444苏公网安备 32011302321234号
客服
消息
收藏
下载
最近