查看完整案例

收藏

下载
通透的采光,穿过薄纱窗帘,虚实之间,弥漫于空间的是那魅惑不不娇的绿影。
一面白,两面灰,一层洁净,跨越横折的迷雾,伸手拨开云雾,显露金色的光芒,绿色的盎然。眺望远方,活在当下,不必艳羡远处的风景,最美好已存于空间。
每一处的线条都是那么规整细致,小景之处,细磨静观材质的对比,形色之间,精致迷人。
虚实对比,生活的艺术不是抽象虚无的,而是不经意间就让阵阵暖意流入心尖。
一抹清绿,几处金泽,白皙纯透的空间增添许多浓情。
铜色的摆件,形态各异,用几何之形表空间之美。
借前景,表意境,花开有时,花落无期,正盛之时,享受当下。
拉扯的线条附着于纯净白墙之上,层层相依却又分离出每一个区块。玻璃与金属两种材质的衔接,牵引着羊角装饰物,与一抹绿色的抽象装饰画融汇相交,借着铜色的金属吊灯映照,散发着独特的魅影。
层层跌落的金色微光,洋洒在你的高脚杯之上,折射出你美丽温情的侧颜,让我沉醉于此刻,落入浪漫而又有格调的生活漩涡。
小小的方桌拉近彼此间的距离感,布艺的质感,木质的温存,金属的光泽,都具有生活情感的表述,随着场景的来回切换,刻入生活的细枝末节。
卧室一角,便可纵观全局。黑色与蓝色双面的床品、浅蓝色的背景墙、金色的壁灯、个性抽象的动物装饰,以柔和的色彩结合深色的木质质感,刚柔并存的居住空间。
不规则的嵌入式书柜依附着墙面而存在,散发出书生意气。白色与蓝色交接的格调下,光线穿透金色边框的窗户,折射而入,定格休闲办公的舒适状态。
金属镶边的建筑装饰画,虽无色彩,却在宝绿色和白色的拼接背景衬托下格外显眼,慵懒一隅,自由、随性而安却饱含文化底蕴的生活态度表现地淋漓尽致。
黑色的分子吊灯,实用且富有性格。纹理分明的桌面、条纹的布艺沙发、木饰纹理的墙面铺贴,不同材质的酒柜分布装置,与三两朋友相会,品酒会谈,氛围和谐有情调。
地下室原始结构图
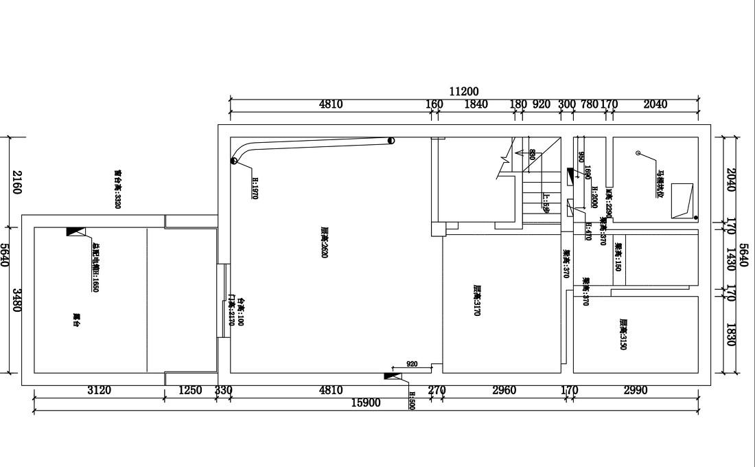
一层原始结构图
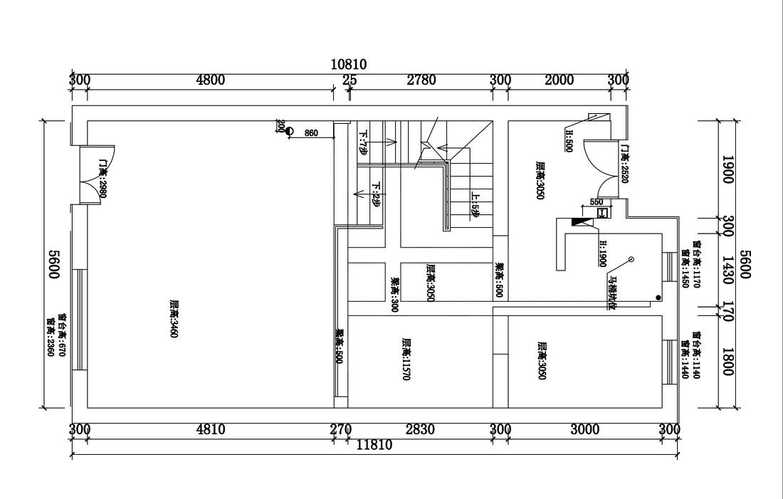
二层原始结构图
三层原始结构图
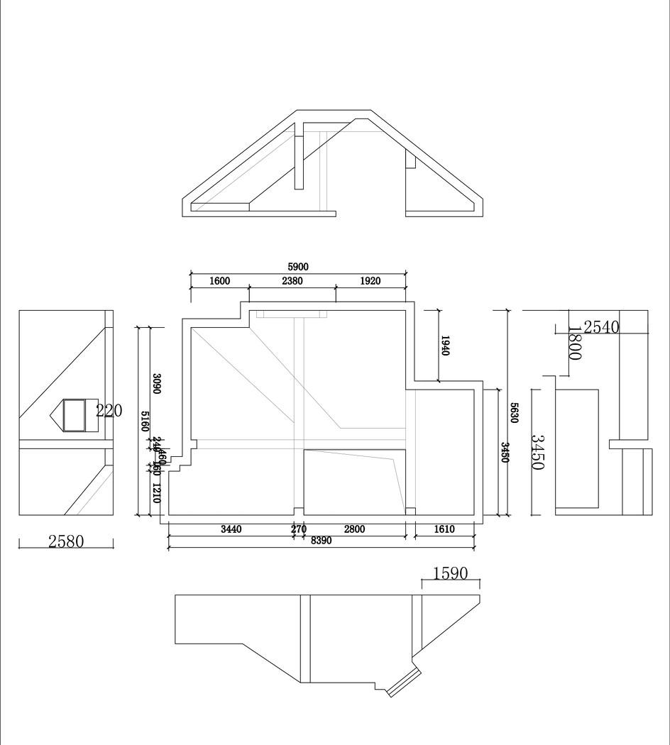
阁楼原始结构图
地下室平面方案
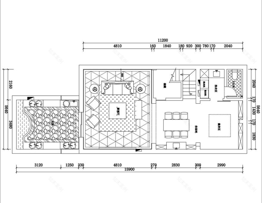
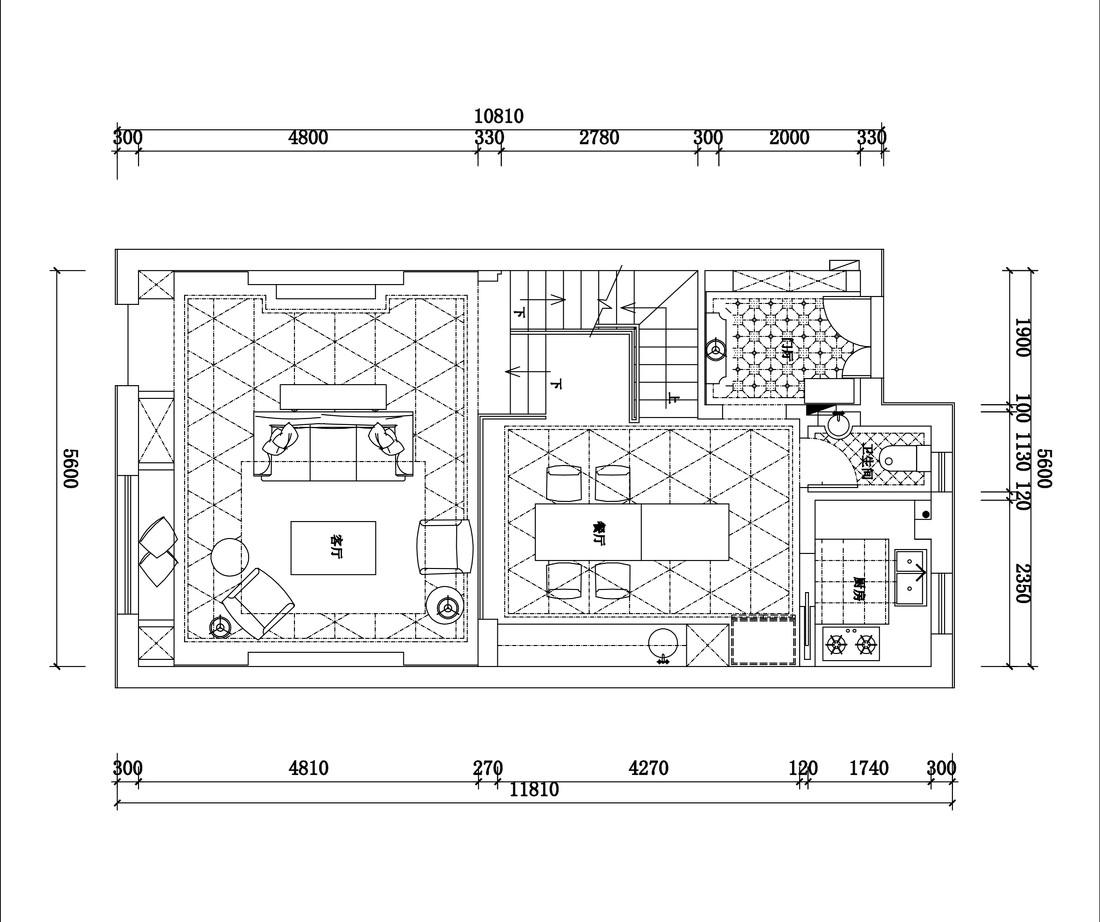
一层平面方案
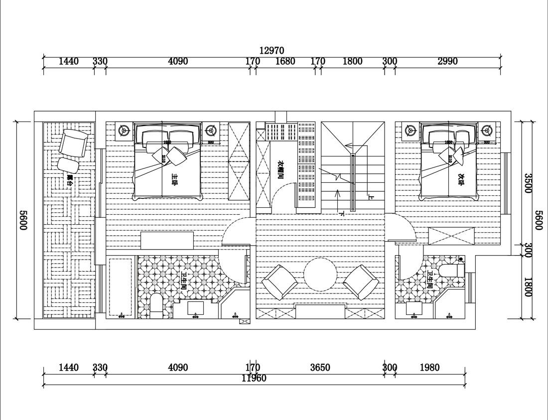
二层平面方案
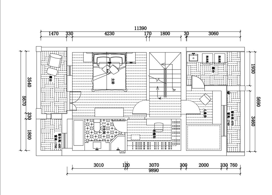
三层平面方案
阁楼平面方案
客服
消息
收藏
下载
最近


























