知末
知末
创作上传
VIP
收藏下载
登录 | 注册有礼

运动主题酒店设计案例解析

2018/02/28 00:00:00
查看完整案例
微信扫一扫
收藏
下载
运动主题酒店设计案例解析-0
咖吧1
运动主题酒店设计案例解析-2
咖吧2
运动主题酒店设计案例解析-4
门厅
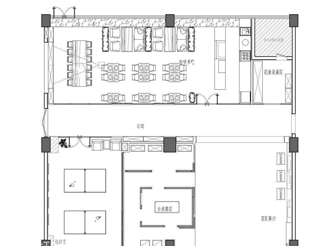
运动主题酒店设计案例解析-6
展区
运动主题酒店设计案例解析-8
运动区
运动主题酒店设计案例解析-10
南京喵熊网络科技有限公司 苏ICP备18050492号-4知末 © 2018—2020 . All photos and trademark graphics are copyrighted by their owners.增值电信业务经营许可证(ICP)苏B2-20201444苏公网安备 32011302321234号
客服
消息
收藏
下载
最近