查看完整案例


收藏

下载
一整面的玄关柜使功能划分更为细致,整面柜体虚实有度、比例协调,满足功能需求的同时更不乏设计感,正面的端景设计使入户充满了仪式感。
白墙能够让空间更加灵活,越是简单的色彩,越能贴合人的内心
木色清新自然,打破固有的留白空间。
木色与白色的融合让视觉层次更加丰富。
白色是建筑设计艺术最初的基调色,是一种最纯粹最干净的生活方式。
冷暖的充分调和,呈现恰如其分的最风尚。卧室的木格栅床头背景打破固有的留白空间,使空间更加清新自然给人以舒适感。
白色的纯洁与淡雅,木色的自然与简朴,整体呈现出舒适的生活理念。
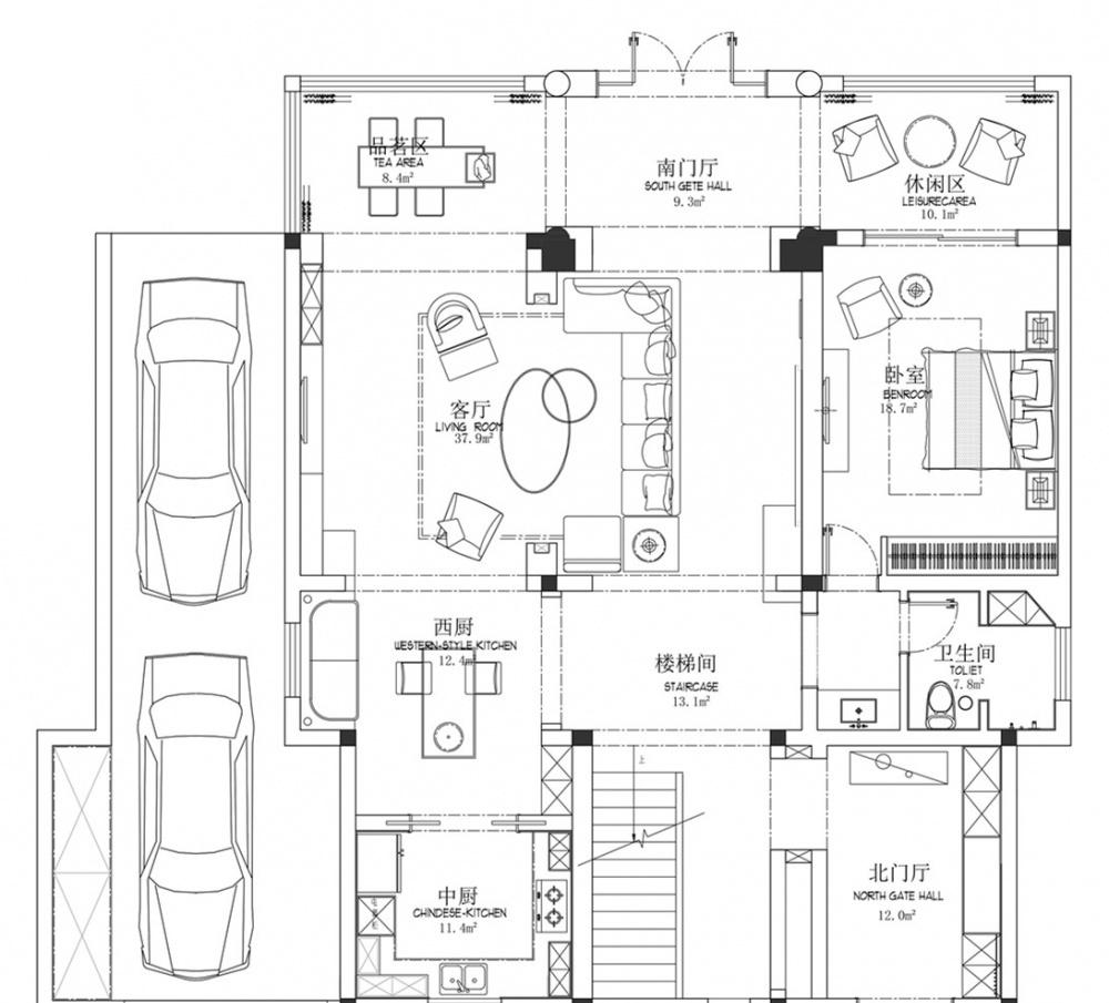
一楼平面布置图
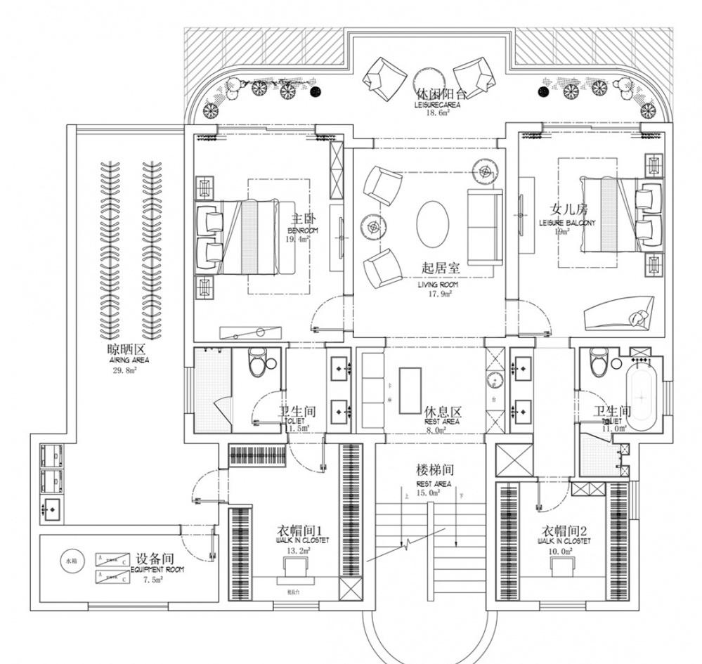
二楼平面布置图
客服
消息
收藏
下载
最近












