查看完整案例


收藏

下载
安特卫普大学 x 布鲁塞尔自由大学
UAntwerp x ULB
比利时联邦政府向瓦奇诺波利斯中心投资了1300万欧元(合人民币9332万元),私人合作伙伴也为完成该项目进行了投资。瓦奇诺波利斯中心与布鲁塞尔自由大学有着密切合作:布鲁塞尔自由大学在人类疫苗免疫学领域成就显赫,而且从现在开始,这项工作将在高质量的免疫学实验室内进行。
The Belgian federal government invested 13 million euros in Vaccinopolis. Private partners also invested in the realization of the project. There is close cooperation with the ULB: the Brussels university is very successful in the field of human vaccine immunology and from now on does this from a high-quality immunological laboratory.
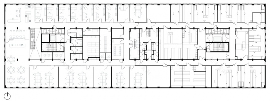
▼一层平面图,ground floor plan
©Proof of the sum
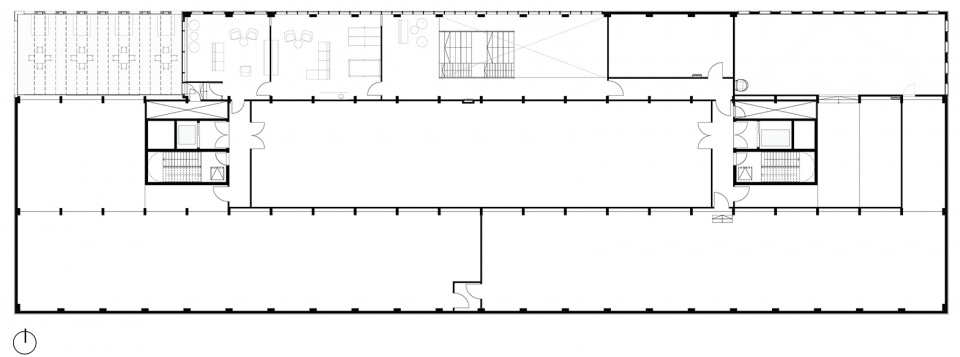
▼二层平面图,first floor plan
©Proof of the sum
▼三层平面图,second floor plan
©Proof of the sum
▼四层平面图,third floor plan
©Proof of the sum
▼五层平面图,forth floor plan
©Proof of the sum
▼北立面图,north elevation
©Proof of the sum
▼南立面图,south elevation
©Proof of the sum
▼东立面图&西立面图,east elevation & west elevation
©Proof of the sum
客服
消息
收藏
下载
最近



























