查看完整案例


收藏

下载
“匹配无法匹配的”是设计师对于该空间的设计理念,在这一理念的驱使下,他将精密的细节填充在粗犷的框架中,将复杂与粗糙和简单相融,定位于吸引那些以追逐时间效率,又不愿花过多时间在食物上的忙碌的人群们。金色和蓝色的镜子在空间内彼此映射,精致化的细节在镜面中放大,掩盖了空间狭小的实时。设计师采用典型的俄罗斯角砾岩作为空间内部的主要肌理,地板石纹令空间如同呈现春日湖面的龟裂纹理。散发独特魅力的黄铜沿着如俄罗斯火车上的怀旧海蓝色,营造了一种意想不到的清新之感,却又散发着如此亲和的日常氛围。
Veter Design has attempted to infuse the walls of the cafe with the concept, matching the unmatchable: blending brutal frame with subtle stuffing, combining intricate with rough and simple, drawing those seeking time efficiency, so crucial and indispensable for Moscow, but unwilling to refuse from savouring truly delicious food. Modest size was offset with imposing details so as to disguise lack of space: huge mirrors, golden and blue ones, reflect each other and emphasize shaggy walls. Marble breccia, so typical of Russia, is the base for the space, its floor, inspired by the lake starting cracking in spring, addind to the weightlessness and freshness of the place. Mesmerizing copper along with navy blue reminiscent of classic Russian train compartments make up an unexpected, fresh and at the same time grounded impression, uniting elegance with everyday life.
▼金色和蓝色的镜子在空间内彼此映射,huge golden and blue mirrors reflect each other
▼怀旧蓝营造熟悉的氛围,navy blue reminiscent of classic Russian train
▼角砾岩作为空间内部的主要肌理,marble breccia is the base for the space
▼大理石地面的色彩与肌理和细腻的家具肌理及色彩形成鲜明对比,the texture and color of the marble plays a contrast with the texture and color of the furniture
▼吧台,bar
▼洗手间,toilet
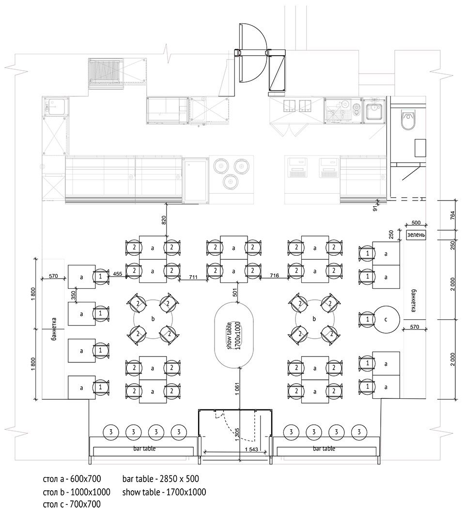
▼平面图,plan
▼地砖纹理,flooring
Architects: Veter Design & Architecture
Project: Cooker’s Gourmet Cafe
Location: Moscow, Russia.
Year completed: June, 2017.
Area: 100 sqm.
Photography: Mikhail Loskutov.
客服
消息
收藏
下载
最近













