查看完整案例


收藏

下载
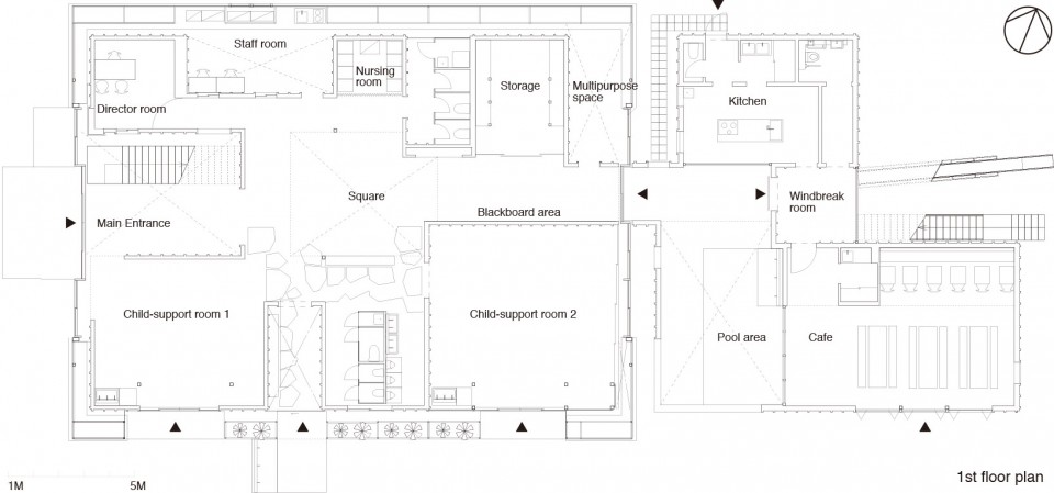
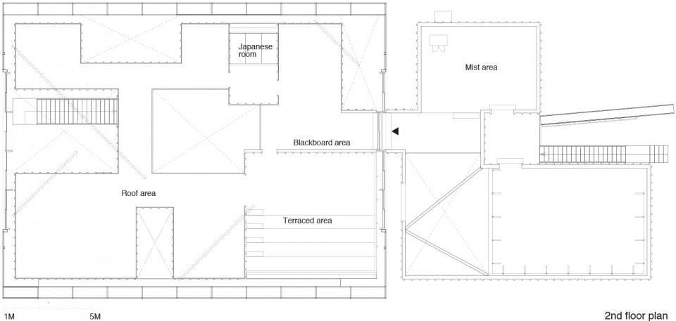
Location: Ichihara, Chiba, Japan
Principal use: Kindergarten
Design and Supervise: Yasutaka Yoshimura Architects
Structural engineer: Eisuke Mitsuda Structural Consultants (wooden) / Hasegawa Sogo Sekkei (Steel)
Service: Kankyo Engineering Inc.
Adviser for kindergarten: HIBINOSEKKEI, Inc + yoji no shiro
General contractor: Hirai Kensetsu / Sanwa-kigyo Corporation (Tent Warehouse)
Category: Newly built
Completion date: Mar/2016
Structure: Wooden + steel, 1 story, partly 2 stories
Site area: 3,361.51sq.m
Building area: 512.42sq.m
Total floor area: 684.81sq.m
MORE:
Yasutaka Yoshimura Architects
,更多关于他们:
客服
消息
收藏
下载
最近





















