查看完整案例


收藏

下载
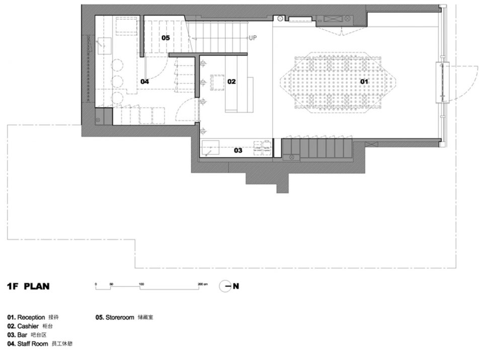
▼一层平面图,the first floor plan
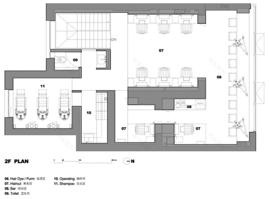
▼二层平面图,the second floor plan
项目名称:李知恩发型形象设计 / 天津总店
项目类型:美发沙龙
项目地点:中国天津市南开区伊顿玫瑰公寓底商
设计面积:室内实用面积,一楼53平米,二楼104平米,共157平米
竣工时间:2016.10.15
设计机构:大宽(天津)设计
设计总监:赖建安
设计团队:赖建安、许明霞、韩精灵、林宗永
项目摄影:白川建筑摄影 / 梁泉
设计撰文:赖建安
设计图解:赖建安、许明霞
Project Name: Lee Ji Eun Hair Styling Salon / Tianjin head office
Project Type: Hair Salon
Project Location: Tianjin, China
Project Area: 1F/ 53 square meters, 2F/ 104 square meters, Totally 157 square meters
Completion Time: 2016.10.15
Design Company: Exakuan Space Design Co.,Ltd.
Design Director: Jien-An Lai
Design Team: Jien-An Lai ,Ming-Hsia Hsu, Jing-Ling Han, Ysun-Yun Lin
Telephone: +86 18622611305 / Ming-Hsia Hsu
Photographer: Bai-Chuan Architecture Photography/ Quan Liang
Writer: Jien-An Lai
Diagram: Jien-An Lai, Ming-Hsia Hsu
客服
消息
收藏
下载
最近




















