查看完整案例


收藏

下载
▼空间结构分析,structure
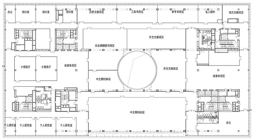
▼一层平面图,the first floor plan
▼二层平面图,the second floor plan
▼三层平面图,the third floor plan
▼四层平面图,the forth floor plan
▼五层平面图,the fifth floor plan
▼屋顶平面图,the roof plan
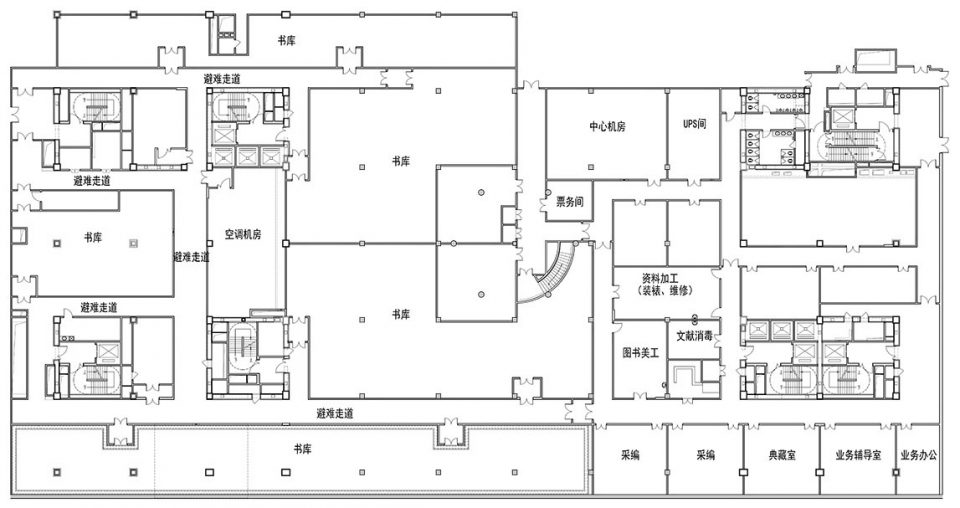
▼地下层平面图,the basement floor
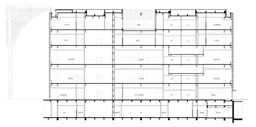
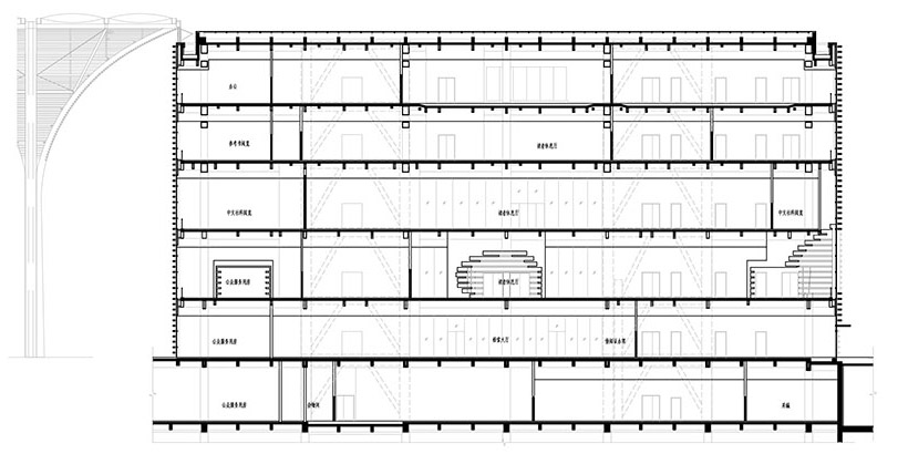
▼剖面图,sections
▼北立面图,north elevation
▼南立面图,south elevation
▼东立面图,east elevation
▼西立面图,west elevation
项目名称:天津滨海图书馆
设计团队: MVRDV建筑师事务所 + 天津市城市规划设计研究院
建筑面积:33700㎡
项目地点:滨海新区,天津,中国
设计时间:2014-2017
建成时间:2017
天津滨海图书馆设计团队
建筑设计:MVRDV建筑师事务所+ 天津市城市规划设计研究院
结构顾问:三江钢结构设计有限公司,天津大学
幕墙顾问:英海特设计咨询有限公司
物理环境顾问:天津市天大建学科研开发有限公司
绿建顾问:天津市建筑设计院—绿色建筑机电技术研发中心
内装设计:天津市建筑设计院
泛光照明设计:华谊建源照明设计有限公司
智能化设计:天津市建筑设计院—绿色智能建筑设计中心
球形演示厅声学设计:中广电广播电影电视设计研究院
天津滨海文化中心设计团队
城市设计 :天津市城市规划设计研究院
总体设计:天津市建筑设计院
修建性详细规划设计:天津市城市规划设计研究院
文化长廊丨 GMP建筑师事务所+天津市建筑设计院
滨海图书馆丨MVRDV建筑师事务所+天津市城市规划设计研究院
滨海美术馆丨GMP建筑师事务所+天津市建筑设计院
滨海现代城市与工业探索馆丨伯纳德屈米建筑师事务所 BTA+天津市城市规划设计研究院
滨海市民活动中心丨天津华汇工程建筑设计有限公司
滨海演艺中心丨Bing Thom建筑师事务所+天津华汇工程建筑设计有限公司
Project Name: Tianjin Binhai Library
Design Team: MVRDV & TAUPD
AREA: 33700㎡
Location: Binhai District, Tianjin, China
Design time: 2014-2017
Completion: 2017
客服
消息
收藏
下载
最近









































