查看完整案例


收藏

下载
非常感谢
屈泊静
Appreciation towards
Bojing Qu
for providing the following description:
本设计基于一个简单的设计思路,主要是想要创造出一个可以旋转的居住胶囊,这样就可以充分利用空间的每一面,从而达到最大程度的空间利用率。今天,上海市正在承受严重的城市扩张的问题,每年都有成千上万的年轻人为了生存而涌向这座城市。对于这些人而言,如何在寸土寸金的城区以极小的空间生存下来就成了很严重的问题。因此,“旋转胶囊公寓”的概念就应运而生,这是一个可以快速建造的轻钢结构的住宅体系,每一个胶囊都由两部分构成,一部分是可以旋转的主要功能空间(起居、卧室、餐厅及其他),另一部分为固定的辅助功能空间(厕所、厨房、储藏室)。这个系统挑战了人类最小的生活空间极限,同时又通过旋转释放出了更多的可应用空间。每个胶囊悬挂于提供旋转能源和竖向交通的核心筒上,核心筒之间又通过和胶囊相通的走廊所连接。这个居住社区位于2010上海世博会的旧址之上,它们又可以随着时间的演变而新陈代谢。与此同时,底层和公共空间又为居民提供了商业和休闲场所。不久的将来,这个旋转公寓社区必将会创造出一个史无前例的从空间和经济两方面节约成本的青年人生活居住方式。
This design is based on a simple problem-solving methodology to create rotate living capsules to make full use of surfaces of the space for young people in shanghai. As the urban sprawl becomes serious in the megacity – Shanghai, thousands of young people flooded into this big city every year. It becomes urgent for them to survive here with limited space and expensive cost. Consequently, the idea of “rotating apartment” is conceived to produce a lighting gauge steel capsule living system that could be fast produced and assembled in the site. Individually, each capsule is made up of two main parts, one is rotating component that involves the main daily living functions such as living room, bed room, dining room and others, the other is the fixing part that mainly contains the subsidiary functions such as kitchen, toilet and storage room. This system challenges the minimum living dimension of human being and multiples the available space simple by rotating it. Each capsule is hanged on the main core tower which provides vertical circulations, and towers are connected each other with corridors linked with capsules. These rotating apartment towers are located on the old site of 2010 Expo in shanghai, it can grow during years to meet the growing population of users. Meanwhile, the open public space also provides commercial and service functions for young people in the lower floors. In future, this rotating youth apartment’s community will absolutely create a unique and unprecedented way of life which greatly saves the space and money for young people.
▼社区的轴测图,Axonometric view of one community
▼高房租产生了对旋转空间的研究,High price of renting of apartment in shanghai leads to studying of rotation space
▼ 在一个单元集合中解决旋转的问题,Rotating solution for units group
▼辅助功能空间 (厕所、厨房、储藏室)是固定的,而主要功能空间(卧室、娱乐、工作)室可以旋转的,The service (toilet/kitchen/storage) spaces can be fixed, while the sleep/entertainment/ work spaces can be rotated
▼ 一个胶囊单体的分解轴测图,exploded axonometric view of a capsule
▼ 一个旋转胶囊的折叠家具设计,foldable furniture for a rotating capsule
▼ 一个旋转胶囊的折叠家具设计,foldable furniture for a rotating capsule
▼控制旋转的旋钮设计,Rotating Knob for controlling of rotation
▼一个女孩早上8点的生活,daily life in one capsule for a girl at 8:00
▼一个女孩早上10点的生活,daily life in one capsule for a girl at 10:00
▼ 一个女孩早上12点的生活,daily life in one capsule for a girl at 12:00
▼一个女孩下午1点的生活,daily life in one capsule for a girl at 13:00
▼一个女孩晚上7点的生活,daily life in one capsule for a girl at 19:00
▼一个女孩晚上9点的生活,daily life in one capsule for a girl at 21:00
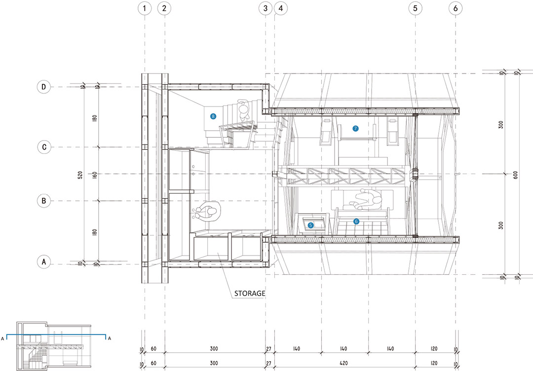
▼ A-A平面透视图,plan perspective view A-A
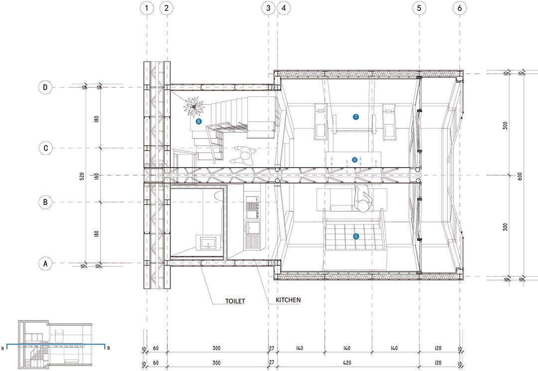
▼B-B平面透视图,plan perspective view B-B
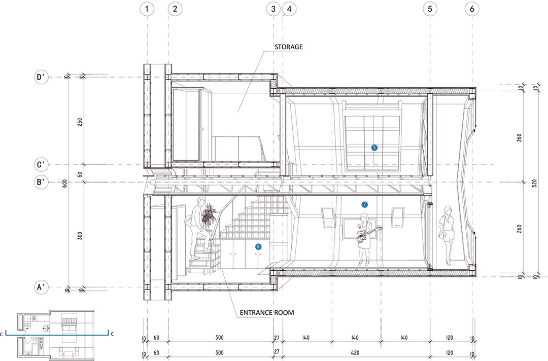
▼C-C剖面透视图, Section perspective view C-C
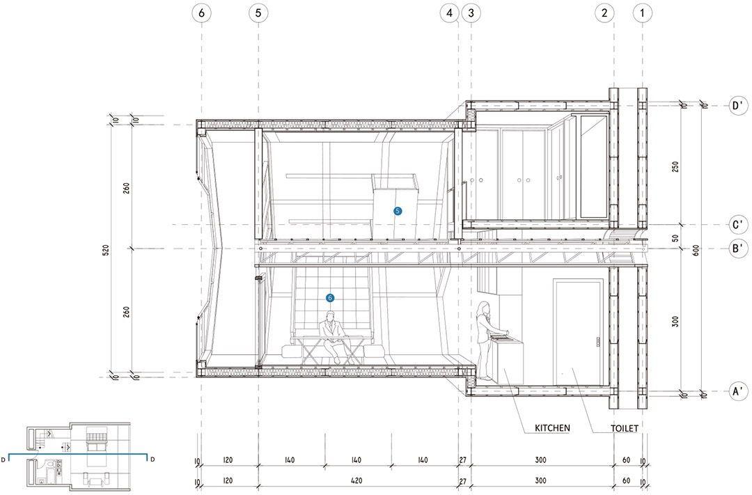
▼ D-D剖面透视图,plan perspective view D-D
▼ 核心筒平面图和结构图,Tower Plan and Construction Plan
▼一个建筑的分解轴测图,exploded axonometric view of one building
▼透视图, Perspective View
▼ 总平面,Masterplan
▼底层平面,Ground Floor Plan
▼A-A剖面, A-A section
设计信息:
设计师:屈泊静
场地:中国上海
学校:米兰理工大学
指导老师:Oliviero Godi 教授 和 Diego Terna 教授
特别感谢:吴若晨、贺倩、朱丹
Project information:
Designer:Bojing Qu
Site: Shanghai, China
School: Politecnico di Milano
Tutors: Professor Oliviero Godi,Professor Diego Terna
Special thanks to Architects: Ruochen Wu ,Qian He,Dan Zhu
MORE:
屈泊静
Bojing Qu
,更多请至:
客服
消息
收藏
下载
最近



























