知末
知末
创作上传
VIP
收藏下载
登录 | 注册有礼
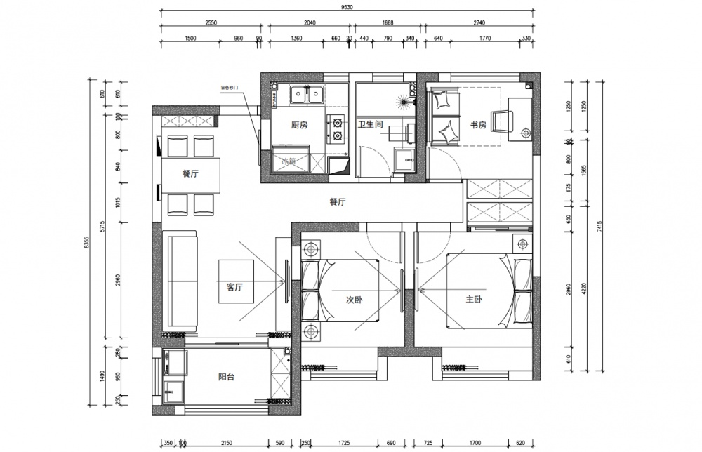
知末案例   /   家装空间   /   平层   /   博诺设计

钟爱白色 钟爱自由!

2019/04/09 00:00:00
南京喵熊网络科技有限公司 苏ICP备18050492号-4知末 © 2018—2020 . All photos and trademark graphics are copyrighted by their owners.增值电信业务经营许可证(ICP)苏B2-20201444苏公网安备 32011302321234号
客服
消息
收藏
下载
最近