查看完整案例


收藏

下载
▼富有诗意的环境,poetic environment
▼轴侧,Exploded Axon
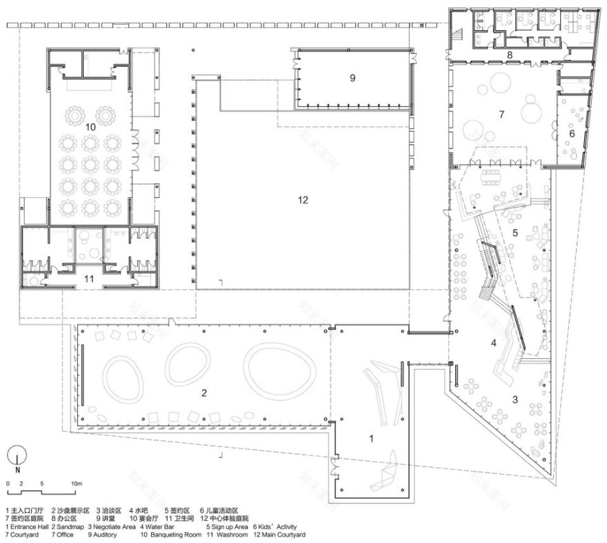
▼平面,Plan
项目名称:重庆中央公园售楼处/生活体验馆
项目地点:重庆• 两江新区中央公园东侧
项目面积:2956.7 m²
建筑设计:gad建筑设计
室内设计:重庆尚壹扬(SYY)装饰设计有限公司
建筑设计时间:2016年04月
建筑竣工时间:2017年01月
室内设计时间:2017年01月
室内竣工时间:2017年03月
室内主创设计:谢柯、支鸿鑫、杨凯、刘晓婕、李东
陈设设计:谭税、徐斌、郑亚佳、张文娟
项目摄影:感光映画 、范翌
Project Name: Central Park Sales Centre
Location: Central Park, Liangjiang New Area, Chongqing
Area: 2,956 m²
Architecture Design: Greenton Architecture Design
Interior Design: SignYan Design
Time: January, 2017
Completion: March, 2017
Chief Interior Designer: XIE Ke, ZHI Hongxin, YANG Kai, LIU Xiaojie, LI Dong
Display Design: TAN Shui, XU Bin, ZHENG Yajia, ZHANG Wenjuan
Photograph: MConcept Images, FAN Yi
客服
消息
收藏
下载
最近












































