查看完整案例


收藏

下载
。
更多请至:
Appreciation towards 陳李制 for providing the following description.
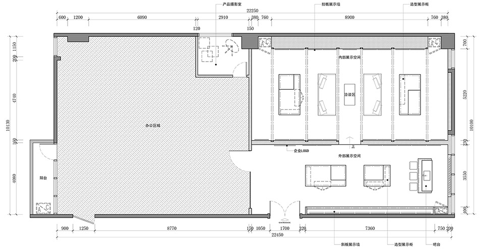
也许逛建材市场最让人受不了的就是千篇一律的铺面和材料展示空间。陳李制为佛山市颐购贸易有限公司设计了一个不同平常的石材样板展示空间,有效的增加了产品与品牌的魅力。如果建材市场中的展示空间不再千篇一律而是百花齐放,那该多棒。
展厅作为载体的容器,由纯粹的造型、单色的材料、明亮的质感打造。为在规整的布局和有限的面积中寻求突破,“外部展示空间”天花用镜子使纵向延伸感倍增,天花的切割造型灯“合二为一”实现悬空效果;“内部展示空间”两端墙身再运用镜子,虚实结合,制造出如时光隧道般“无限延伸”的空间感。
展示产品作为“皮肤”依附于容器中,赋予空间生命和灵性,于有限里创造了“无限”。
The Exhibition hall is as the container of carriers, it is built by pured modelling, monochrome material and bright texture. For breakthrough i the neat layout and limited area, “external display space” smallpox is made by mirror in order to doubling longitudinal extension,the cutting of smallpox modelling lamps ”combined” to achieve hovering effect; “Internal exhibition space” on the both end sides used by the mirror, virtual-real synthesis, invent the “ infinite extensibility ”Spaciousness like The Time Tunnel.
To display the products as “skin” attached to the container, give life and spirit, create “infinite” in the limited space.
▼平面布置图
▼天花平面图
▼ 外部展示空间立面图
▼内部展示空间立面图
项目名称:佛山市颐购贸易有限公司展厅
主创设计师:李健彬 陳国斌
摄影师:欧阳云
项目面积:100平方米
项目完工时间:2014年12月
设计企业:陳李制
官方网站:暂缺
项目地址:佛山市禅城区季华二路火炬创新创业园C区9楼6号
更多请至:
客服
消息
收藏
下载
最近













