查看完整案例


收藏

下载
客餐厅顶部丰富的线条变化、富丽的布艺帷幄,将宽敞阔朗的客厅营造的简雅而又明快。色彩上主导的经典蓝白与石材的暖色,呈现出内敛的时尚质感,点缀的局部蓝色,增添了一份贵气。
客厅背景的石材,做了层次及灯带的处理,对称的罗马柱式设计,使得层次感更强。
客厅一角
客厅一角,纯蓝色嵌金边,带幔头的窗帘,演绎干净唯美
餐厅色彩深浅分明,护墙板装饰的背景墙上对称设置了玻璃置物柜,陈列着酒器与陶瓷。胡桃木雕花餐桌配浅绿布艺花卉实木餐椅, 经典的欧式水晶灯饰悬挂顶上,构筑出清新自然的就餐环境。
浅蓝色的皮质餐厅搭配描银线的餐桌,回味经典
客厅背景墙
客厅背景墙与楼梯间的镂空隔断
客餐厅
浅绿色皮质沙发
顶部的线条与墙面的墙纸,相得益彰
餐厅设计了红酒的收藏功能
楼梯采用简洁的欧式铝艺,细致通透
门厅地面欧式拼花
卧室以白色板围筑起清雅的面状感,简约的典线配合着墙板,勾勒出空间的形态,多幅挂画装点出艺术效果;同色系的床饰上,一抹深蓝与尾凳色彩呼应。透窗而进的光线,带来了卧室明媚的温暖感。
老人房
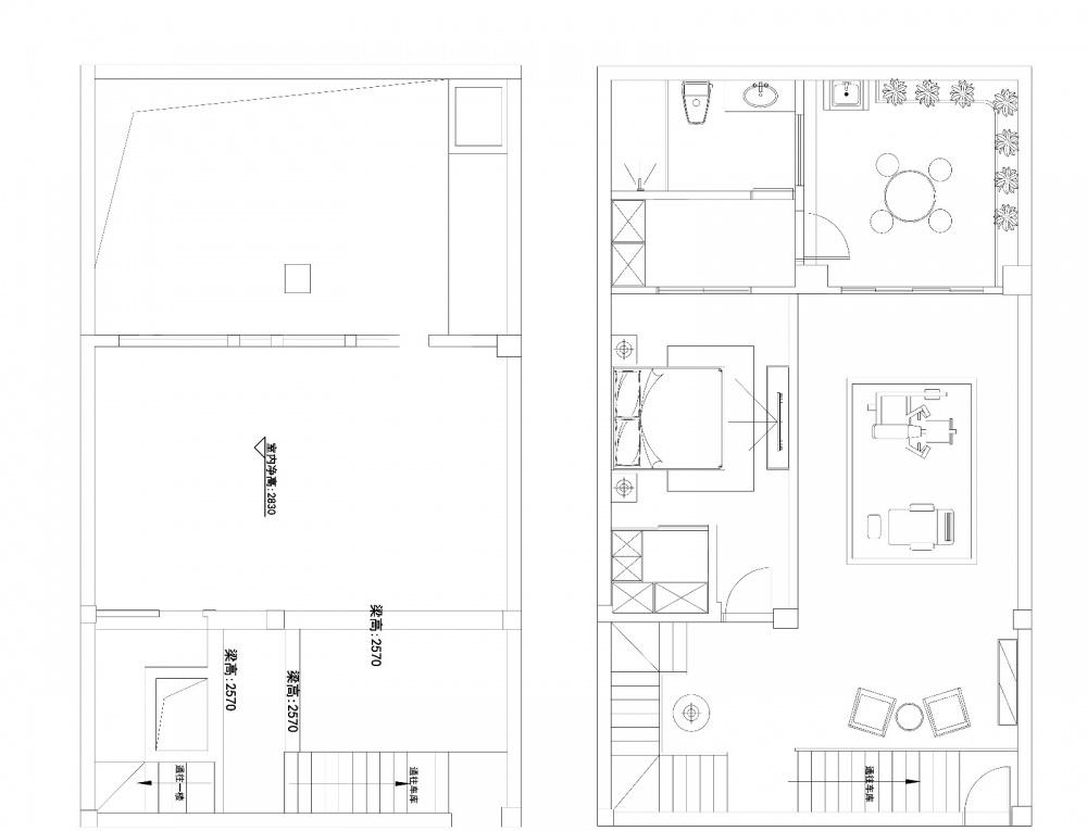
-1F户型图
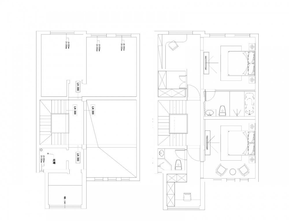
1F户型图
2F户型图
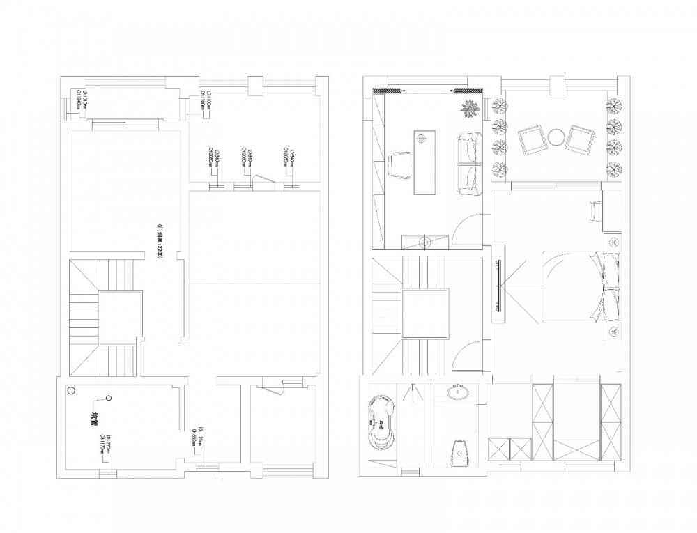
3F户型图
客服
消息
收藏
下载
最近
























