查看完整案例


收藏

下载
开阔的门厅设计,布置得非常整洁。从门厅进入室内,映入眼帘的不仅是日光绿景,也将公共空间风景纳入眼底。
客厅呈现出显著的简美风格,设计师通过元素、色彩、照明、原材料简化到最少的程度。简约的空间设计非常含蓄,达到以简胜繁的效果。客厅空间是最有情调的一角,也是最颇显主人情调的一角。米色、灰色现代美式沙发,搭配原木色地板,将简约休闲的生活气息贯穿其中,让人视觉倍感轻松。
就像美剧中的餐厅一样,设计师做了一套开放式厨房+餐厅设计。宽敞的落地玻璃窗餐厅,以白色为基调,给人一种心旷神怡的感觉,设计师将时尚感较强的餐桌椅与富有古典韵味的吊灯搭配在一起,营造了一个舒适且质朴的就餐环境。
金色孔雀艺术品委婉而高贵,与楼梯硬朗的踏步线条相互映衬和柔和。楼梯下的一排藏酒柜,可以保存主人从国外带来的进口美酒。加之墙壁上的一幅暖色画作,楼梯厅俨然成为家中最文艺的一处空间。
白色落地原木书柜,垂直的空间动线分配不同机能需求,有效的建立空间开放感受;白色矩形窗框承载着孔雀绿花瓶中一束黄,调和了空间的冷硬。灯光泻下,洒落于高级灰的马赛克地毯之上,从而释放了视野的立体范围。
卧室的设计同样延续客厅的简约线条和美式旋律,通过采用延续、关联及取舍的手法做了顶部空间上的设计。浅灰色的墙面令人精神倍感放松,几幅画则象征了一种自由的精神向往。
进入卧室,首先映入眼帘的便是明亮光线中的四柱床。浅色的原木床与床头优美的白色曲线,打造简美中的复古情怀。设计师为墙壁穿上了时尚的白色墙裙,落地帷幔则拉开了人们与大自然的一道心灵之门。
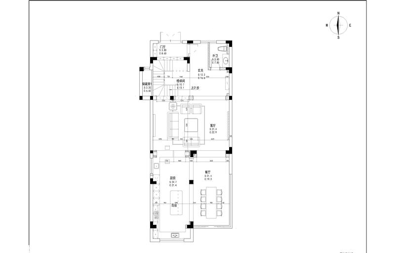
一层平面布置图
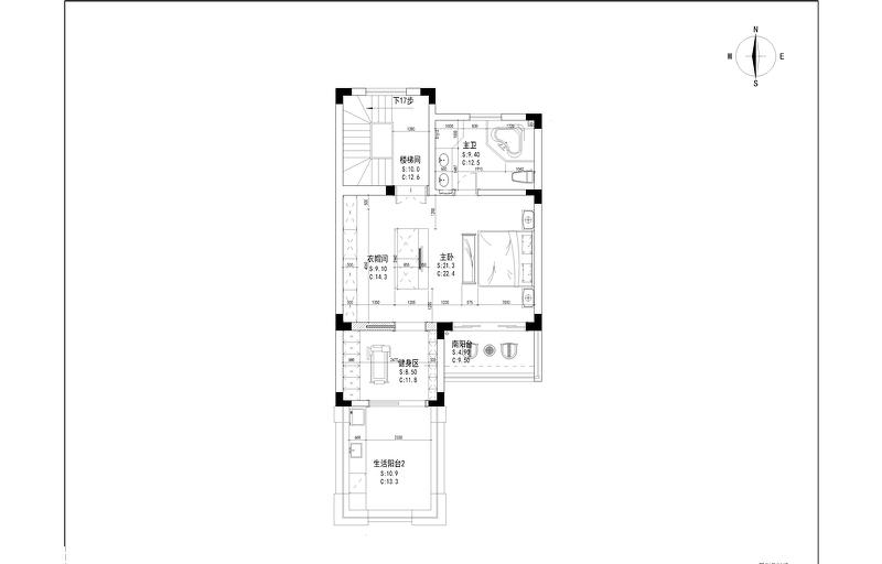
二层平面布置图
三层平面布置图
客服
消息
收藏
下载
最近












