查看完整案例

收藏

下载
图所显示是改建后的效果,原户型是没有这个空间,经改建后,客厅非常宽大,这也是客户最为舒心的,质朴木框真皮欧式沙发放入后,周围还有很大空间。
背景为整块石材,现场定做顶面金箔,透露出一丝丝富丽之感!
圆型吊顶,配圆型的餐桌,让家人感到其乐融融!地面的拼花,虽施工比较费时费工,的确有着不错的效果!
谁说墙纸只用在墙面,用在顶面效果也很好哟,香槟金色软包配宽大的床,一觉醒来,舒展开来!
淡香槟色的软包,白色欧式沙发,朋友聚会喝茶淡心好去处。
实景与效果图,虽有不同但神韵依旧,更增添了一丝丝真实!
顶面弧型天花,墙面相对造型少一些,精美欧花墙纸,也是很不错呀!
素色的防腐木柱与藤架,虽完工时没有藤枝,但让人联想得到。
卵石、假山,庭院虽不大,却感到趣味与幽静。
弧型天棚帘,按心意调节光线所需。
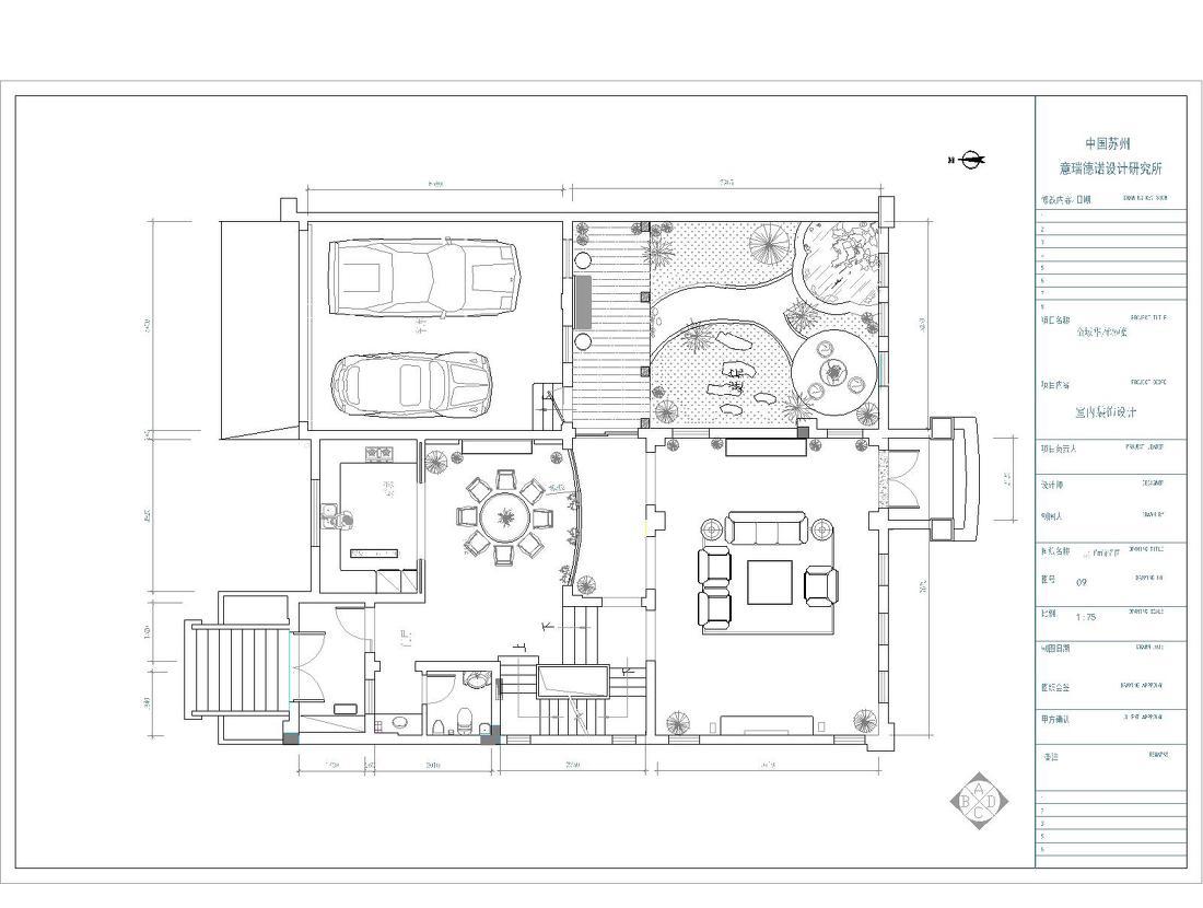
一层平面布置图
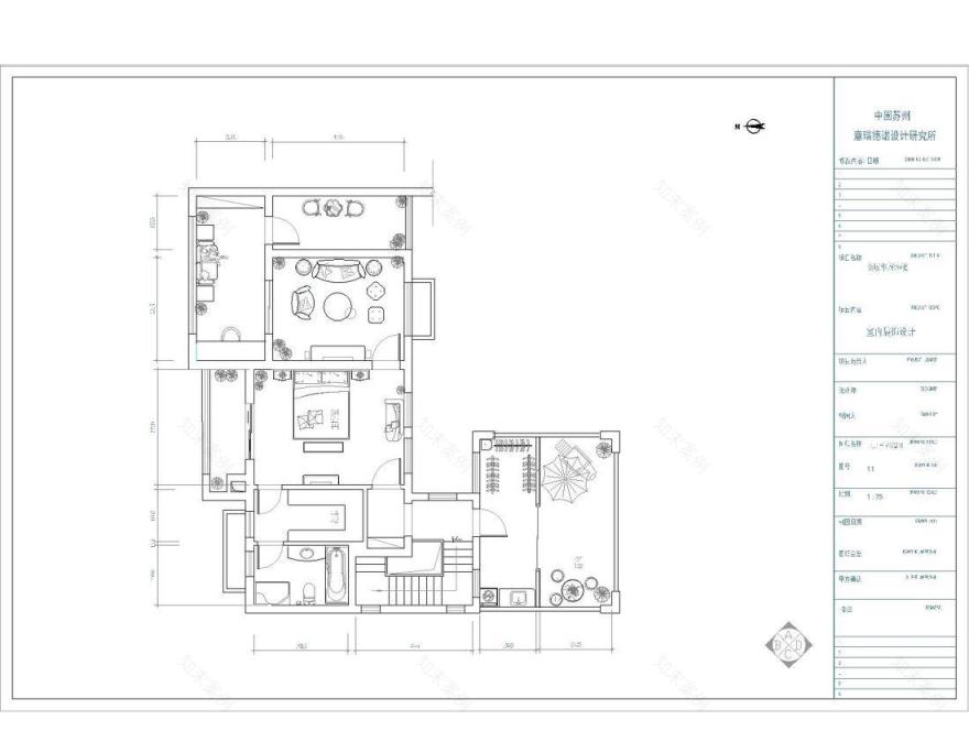
二层平面布置图
三层平面布置图
客服
消息
收藏
下载
最近















