查看完整案例

收藏

下载
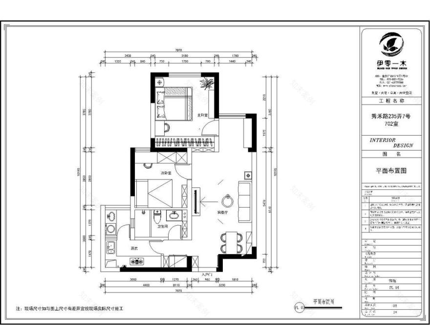
玄关处设计大容量玄关柜,可以满足多双鞋子的收纳问题。 功能上划分了挂衣区,中部设计摆放区、抽屉存储,上面存储换季鞋物,下面存放当季常用鞋物,隔板可拆卸,冬天放靴子也可以灵活调节。
客厅与餐厅连通,墙面做了分色处理,简约处理。在光源的设计上,主灯与射灯并存,射灯作为重点照明,灯带为辅,配合整体温馨的色调,让客厅更加舒适,可根据情境变换灯光,不会单一乏味。
客厅的面积不是很大,为了不占用过多空间,选择了一张沙发,茶几也是小小的,而且考虑到安全性,茶几是选的圆形的
阳台设有办公桌。又可在夜晚方便临时办公。色彩氛围保持简约时尚。
餐厅延续客厅色彩基调,局部使用明媚的橘色进行点缀,让餐厅看上去更加灵动活泼。
厨房简洁的造型搭配小清新质感厨具,显得空间清新舒适,当阳光拥入,幸福显得格外耀眼。
主卧的方案体现精致、雅奢、从容的生活方式,提取自然及生活中的美学元素,构筑出艺术氤氲的舒适空间。
整个卧室盈缺妥恰,给人以舒缓治愈的心里感受。
衣帽间设计为女主人增加了化妆桌,轻盈的饰品装点其上,凸显了空间主题,整面的格式衣柜满足了大部分的储物需求,使衣物的收纳一目了然。
卫生间花色砖来提亮空间,洗手台柜子的颜色作为点缀,功能颜值兼具,细框门的使用提升整个空间颜值。
客服
消息
收藏
下载
最近




























