查看完整案例


收藏

下载
原结构已经经过改动装修,不过和现在业主的需求完全不同,因此需要把原有的装饰面以及墙体进行拆除、改造。
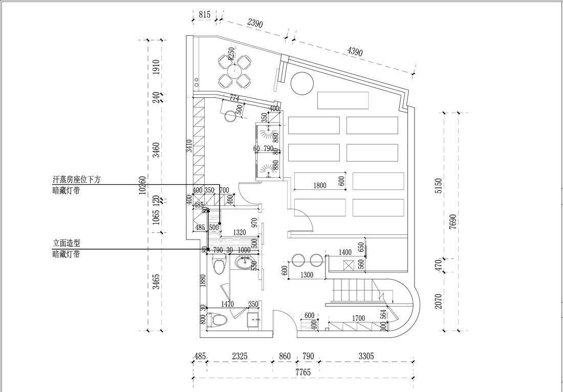
改后的一层平面,把原卫生间尺寸做了一点调整,将原厨房的空间经过重组改造成了一间小的汗蒸房空间,原小卧室的空间改造成了更衣间,将原楼露台所有的地面空调主机挂到了墙面,地面加以利用做成一个休闲阳台,楼梯口下面也进行了改造,变成了进门换鞋的区域额,原大卧室的空间改成了一个瑜伽房和一个储藏室。
将二楼结构进行拆除改造,做成一个比较大的瑜伽教室,二楼楼梯平台区域做成卡座休息区。
客服
消息
收藏
下载
最近








