知末
知末
创作上传
VIP
收藏下载
登录 | 注册有礼

常州 Z 别墅地下一层平面布置图设计解析

2016/09/26 00:00:00
查看完整案例
微信扫一扫
收藏
下载
常州 Z 别墅地下一层平面布置图设计解析-0
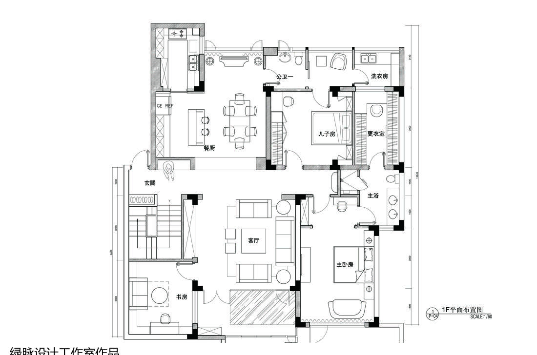
一层平面布置图
常州 Z 别墅地下一层平面布置图设计解析-2
地下一层平面布置图
常州 Z 别墅地下一层平面布置图设计解析-4
常州 Z 别墅地下一层平面布置图设计解析-5
常州 Z 别墅地下一层平面布置图设计解析-6
常州 Z 别墅地下一层平面布置图设计解析-7
常州 Z 别墅地下一层平面布置图设计解析-8
常州 Z 别墅地下一层平面布置图设计解析-9
南京喵熊网络科技有限公司 苏ICP备18050492号-4知末 © 2018—2020 . All photos and trademark graphics are copyrighted by their owners.增值电信业务经营许可证(ICP)苏B2-20201444苏公网安备 32011302321234号
客服
消息
收藏
下载
最近