知末
知末
创作上传
VIP
收藏下载
登录 | 注册有礼
知末案例   /   餐饮空间   /   中餐厅   /   赵晟

冯家小厨餐厅空间改造,打造多元餐饮体验

2017/06/24 00:00:00
查看完整案例
微信扫一扫
收藏
下载
冯家小厨餐厅空间改造,打造多元餐饮体验-0
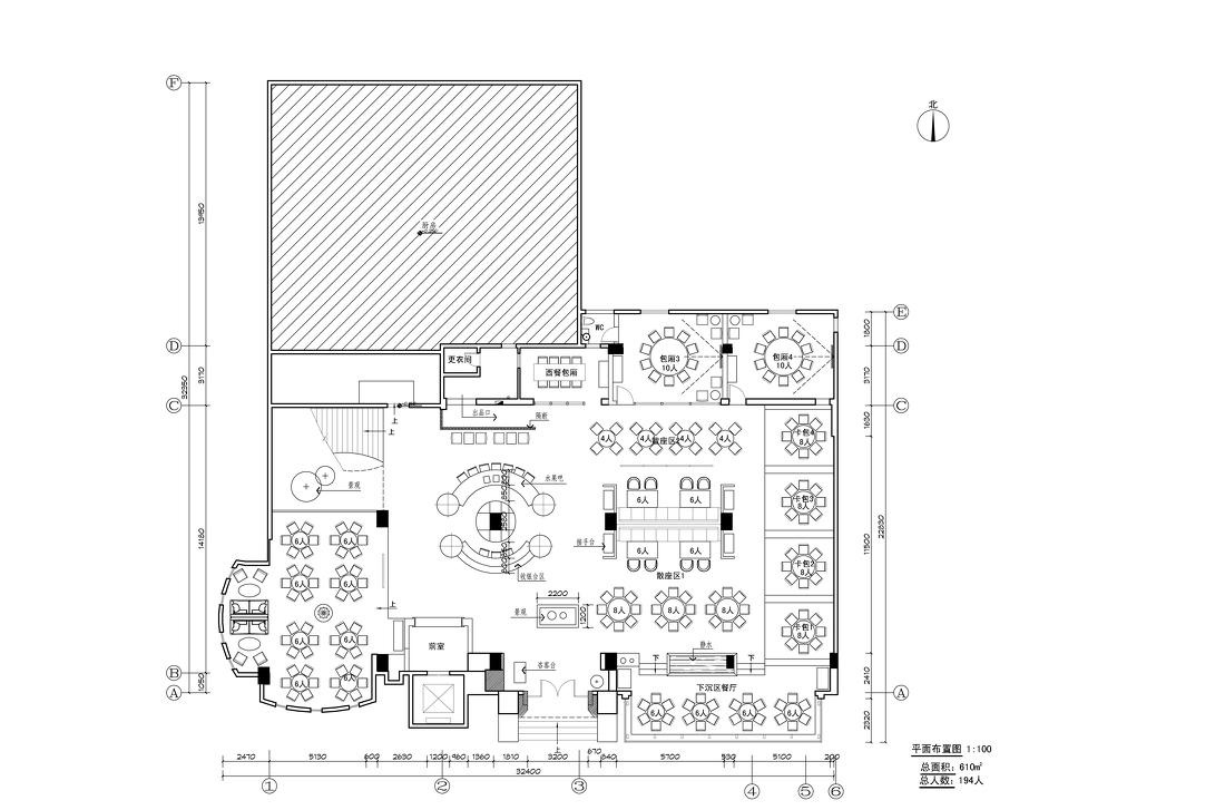
平面方案
冯家小厨餐厅空间改造,打造多元餐饮体验-2
外观改造
冯家小厨餐厅空间改造,打造多元餐饮体验-4
大厅接待区
冯家小厨餐厅空间改造,打造多元餐饮体验-6
大厅散座区
冯家小厨餐厅空间改造,打造多元餐饮体验-8
大厅下沉区
冯家小厨餐厅空间改造,打造多元餐饮体验-10
VIP包厢
冯家小厨餐厅空间改造,打造多元餐饮体验-12
西餐包厢
南京喵熊网络科技有限公司 苏ICP备18050492号-4知末 © 2018—2020 . All photos and trademark graphics are copyrighted by their owners.增值电信业务经营许可证(ICP)苏B2-20201444苏公网安备 32011302321234号
客服
消息
收藏
下载
最近