查看完整案例


收藏

下载
客厅以灰色调、为主,墙面、地面相呼应,白色吊顶采用线条叠阶简约不失精致,以简单的线条来营造空间的变化层次感,使整个空间亮起来。沙发背景的线条感使整个空间奢华之余带着丝丝温馨感。
餐厅墙面造型与客厅相互呼应,色彩饱和度低于客厅,形成主次分明,或深或浅的空间感受。深蓝色的跳色软装,以及黄色的装饰起到装饰点缀的作用。从精致的细节之处体现业主对品质的追求。
客厅餐厅浑然一体,营造出一个同气连枝、通风采光条件优良的全开放式公共空间。
主卧床头背景采用驼色软包,配上低调又不失质感的灯具,线条简洁的家具衬托下,突显优雅的时尚韵味。抽屉拉手、家具组件,小巧精致,品质在细节之处得到了体现。
女儿房延伸了整体设计风格,淡雅的配色和精致的台灯、装饰画,不经意间流露细腻独特的设计心思,同时也展现了优雅柔和的气息。
书房与整体设计风格一一呼应,墙面线条的修饰,点缀整个空间,开放式书架易于找书。营造一种随意轻松的氛围。
卫生间淋浴区干湿分离,灰色大理石墙地面,搭配淋浴房茶色玻璃、黄铜金属元素的五金,增加了空间的质感。
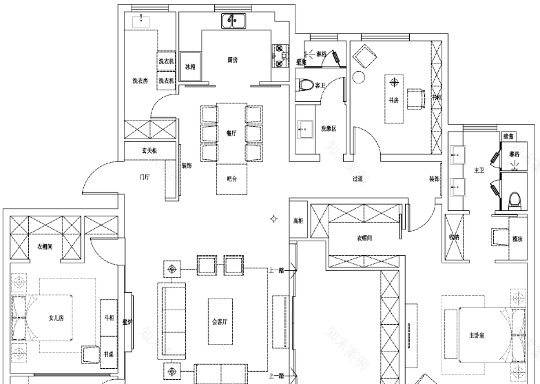
平面布置图
客服
消息
收藏
下载
最近










