查看完整案例

收藏

下载
餐厅SU效果图-入口view
简洁的大理石餐桌椅
餐厅SU效果图-客厅view
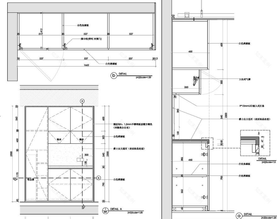
餐厅靠玄关侧为整体钢琴烤漆组合柜,可收纳吸尘器、替换的纸品、日常生活用品等、爵士白大理石台面和墙面及背板处为水吧台,也可以放置小型咖啡机。
组合柜施工详图
吊灯细节
阳角处安装不锈钢防护条
天然大理石黄铜指针挂钟
组合柜侧面为不锈钢电镀黄铜拉丝收边板,金属板厚度为折边工艺的极限:5mm。
客厅软装搭配方案
客厅SU效果图
客厅沙发背景墙刷上了中性灰调的黑板漆,强化男性色彩,选择了美观度和舒适性完美结合的北欧L型沙发、圆形茶几增加空间的温馨感、右侧靠窗下部设计定制了取阅式开放书架和隐藏式翻盖收纳柜。窗户采用实木百叶窗帘,打开时有充足的阳光进入,关上时保证了私密性。
白天窗帘关上也可以尽情看大片
白色加高烤漆踢脚线提升整屋质感又起到了保护墙面的功能。暗色系植物装饰画很好的提高了空间的层次感。
阅读壁灯暖光源
灰色系羊毛地毯
电视柜SU效果图
电视背景墙:铝板白色烤漆组合秋香木矮柜
电视背景矮柜组合详图
开放式书柜,取阅便捷又具有装饰性
主卧su效果图
软包的床头提高了床上阅读的舒适性
符合男性色彩的粗麻质地毯
床头可调节角度的阅读灯
胡桃木实木床头柜
我是衣柜施工详图
衣柜安装后厂家返图
定制衣柜与原精装吊顶做平,极大化减少卫生死角
衣柜内整体导光板,没有明装照明
主卧吊扇灯,调节空气+照明的结合功能,钢琴左侧的整体书柜,20%的面积做开放书籍收纳,既方便又减少清洁难度
客户需要在主卧架设钢琴,确定了钢琴尺寸后,设计了左侧的整体书柜,充分利用空间。#书架
卧室书柜施工详图
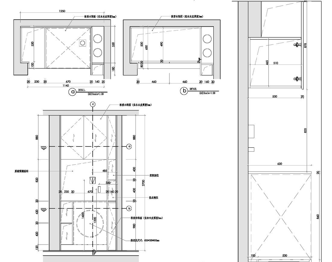
阳台SU效果图-卧室看阳台view,洗衣服+阳台+办公空间的三合一组合
阳台SU效果图-建筑外看阳台view,三合一空间的su效果图及软装方案
阳台洗衣柜施工详图
洗衣机+收纳柜组合。台面可放置脏衣篮,洗衣机左侧开放架可放置洗衣液等洗剂、上方双开门收纳柜用于收纳行李箱。
书桌储物组合柜施工详图
办公空间设计固装组合书柜,新增柜体插线面板便于工作阅读时使用台灯和电脑
组合柜坐塌侧,预留植物生长洞口
儿童房su效果图
北欧风童趣装饰画
书桌+吊柜书柜的组合
定制的飘窗台+衣柜组合
定制的飘窗台和书桌+吊柜书柜的组合,收纳强大,最左侧的三斗收纳柜是提前选定好,然后根据其宽度确定了桌面宽度,达到整体的统一,也避免了突出的边角 #拍儿童房的胖旎强行被入镜,大概会杀我 #收纳 #书桌
#窗台与衣柜接口细节#衣柜侧为欧松板,可作为灵感收集墙,可随意上图钉。
#窗台与吊柜接口细节#
布衣软包床头
白木搭配的圆角床头柜
色彩缤纷的厚羊毛地毯
与客户一共进行工厂柜体厂验,出厂前解决绝大部分细节调整,可使现场安装工作快捷干净无反复。
大部分柜体合照,工厂会在厂房内先行组装,以便在工厂发现和解决问题,最大程度的节约客户的精力和时间。
客服
消息
收藏
下载
最近
























































