查看完整案例

收藏

下载
建筑整体外观改造完整照片
车库改造&设备间改造完成照片
人行入口院门改造完成照片
1F 平面布置图
玄关软装配置图
TRESSERRA 穿衣镜+TRESSERRA 长椅+TRESSERRA 边几
TRESSERRA 穿衣镜细节图
TRESSERRA 穿衣镜细节图
TRESSERRA 长椅+TRESSERRA 边几
SAHAR地毯
定制不锈钢电镀古铜色大门
玄关三层移动鞋柜细节图
客厅软装配置图
客厅完工照片
餐厅软装配置图
餐厅完工照片
餐厅+西厨 完工照片
餐厅电视柜细节照片
西厨细节照片
西厨细节照片
阅读区软装配置图
阅读区效果图
阅读区完工照片
CLASSICON 吊灯&TRESSERRA 圆桌
阅读区完工照片
阅读区完工照片
CASSINA 躺椅+CASSINA 茶几
客厅软装配置图
客厅完工照片
电梯厅完工照片
1F 客用卫生间完工照片
1F 客用卫生间完工照片
中厨完工照片
楼梯间软装配置图
楼梯间完工照片
楼梯间完工照片
楼梯间完工照片
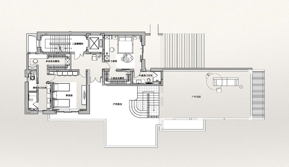
2F 平面配置图
父母房软装配置图
父母房完工照片
父母房卫生间干区完工照片
父母房卫生间干区完工细节照片
父母房卫生间干区双台盆完工照片
父母房卫生间干区马桶间完工照片
2F 女儿房软装配置图
2F 女儿房完工照片
2F 女儿房 TERZANI 吊灯细节
3F 平面配置图
主卧软装配置图
主卧床头背景墙完工照片
主卧电视墙完工照片
主卧完工照片
主卧床头细节图
主卧床头细节图
主卧床头细节图
主用衣帽间完工照片
主卫完工照片
主卫双台盆完工照片
主卫双台盆完工细节照片
主卫双台盆完工细节照片
主卫双台盆完工细节照片
主卫双台盆完工细节照片
主卫浴缸完工照片
主卫浴缸完工细节照片
主卫马桶间完工照片
主卫淋浴间完工照片
主卫淋浴间完工照片
书房软装配置图
书房软装配置图
书房完工照片
书房完工照片
书房完工照片
书房完工照片
书房完工照片
书房完工照片
B1 F 平面配置图
B1 F 软装配置图
影音室完工照片
壁炉细节照片
B1 F 酒窖完工照片
1F材料板
2&3F 材料板
客服
消息
收藏
下载
最近




















































































