查看完整案例


收藏

下载
在配色上,以灰为主色调,通过调整灰的明度和纯度,拉开空间灰度的层次感,用原木色和蓝色作为点缀。 沙发:norhor 茶几:muuto 灯具:flos
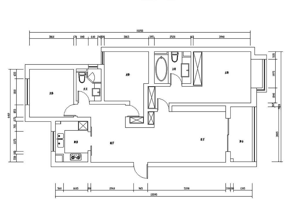
在精装修房交房空间标准下,我们为打造一个清新北欧的基调,从硬装着手,做了减法的设计手法。
餐桌:norhor 餐椅:hay
卧室原始色彩基调暗沉,深灰色硬包背景墙+深棕色地板很难融入全屋的北欧清新风格。因此我们使用线条简洁的家具与饰品搭配,浅灰与白色组合很好地中和了原始空间的色彩明度,又不过分张扬。羽毛灯的选择带给卧室轻柔、舒适的氛围。 卧室家具品牌:boconcept
主卧墙面更换后的浅灰色墙纸,加入书桌+单柜,增加卧室空间实用功能性。
次卧空间尺寸只有3320*3060mm,在考虑到摆放单床会过于压缩空间的情况下,把床与收纳储物功能合二为一,打造成多功能卧室。 定制品牌:智蜂巢 价格:2w+
客服
消息
收藏
下载
最近






















