查看完整案例


收藏

下载
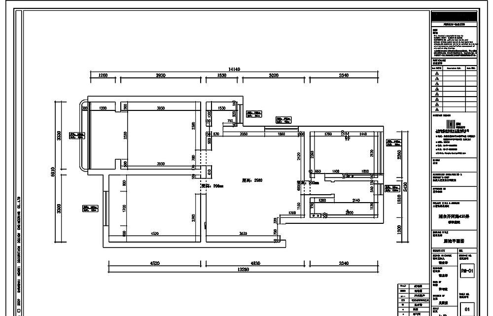
原始客餐厅区域摆放是非常混乱的,动线混乱,功能不明确,没有足够的墙面来作电视背景墙。另一个比较严重的问题是:采光。从南北来看,当南面的两个卧室门关上后,客厅采光仅靠一面北窗,对于居住使用上来说是远远不够的。厨房与卫生间的门相邻,空间上显得狭窄、拥挤。下面来看看具体是如何改造的:
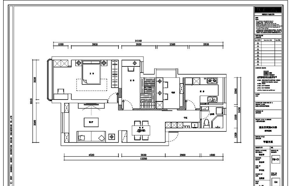
设计师对原始户型中的客餐厅以及次卧区域做了比较大的改动。改造后南北打通,空间得到很好释放,各个功能区划分明确、清晰。具体体现在:
1、打通了次卧与客厅的墙,把客厅区域移到了次卧空间,延伸区域作为餐厅功能来使用。这样做的好处是:原本功能不明确的客餐厅有了很好的解决方案;采光问题得到了很好的解决。
2、原本客厅区域改为书房与次卧两个空间,打通了北储物间。
3、重新划分卫生间区域,做干湿分离,走道空间得到释放。
看惯了千篇一律的白墙,与传统北欧不同的是,设计师大胆尝试湖蓝刷满整面沙发背景墙。经过户型改造,客厅移到了采光最好的南面,使用颜色偏深的湖蓝色,光线打到墙面上会显得客厅更加明亮而不是压抑的感觉,反而成为了客厅的亮点。反之,在采光欠缺的区域,使用白墙会更好。
客厅靠近餐厅有一个半墙转角,半墙同样满刷了沙发背景墙的湖蓝色,使得客厅一体感与环绕性效果达到了最佳。
客厅主要作为夫妻二人会客区域,所以对休息空间有所要求,沙发加地毯不完全足够使用。因此设计师在客厅靠南沿着窗户做了卡座的设计,配以百叶窗装饰,阳光洒下来非常舒适。同时卡座也兼顾储物功能,一物二用。剩余墙面则现场打造了两排展示柜,做到了收纳兼顾美观的效果。这里有个小细节,柜体并非统一白色,中间柜面用了湖蓝与金色,与墙面的湖蓝和软装的金色形成了呼应,要做到好的效果,往往体现在这些细节之上。
沙发、地毯、卡座与电视墙面组合成客厅会客空间,整体环绕感非常好,聚会的气氛很容易营造出来。与整体感觉不同的是,客厅吊顶却非常简单,没有做过多的线条与装饰,而是简单地做了一圈白色挂边,很好地与卡座上方安装中央空调而形成的梁衔接起来。右侧则是做了内嵌射灯与灯带辅助整个客厅的照明。
软装搭配上以黑灰色主,舒适感得到了保证,并用金色提亮空间,显得不会那么沉闷。
设计师为了释放走道空间,把餐桌南北纵向摆放,完全不影响日常居住使用动线。成双的吊灯与装饰画选择,充分拉伸了餐厅的视觉纵深感,与餐桌摆放更加和谐一致。餐厅软装搭配上,装饰画、吊灯和四把颜色造型不同的椅子,都是偏北欧清新的款式,颜色个性鲜明,点亮整个空间。
书房设计在了原客厅北窗,采光性得到了保证,与此同时次卧就会有采光不足的问题。为此设计师把书房与次卧中间做了半墙加玻璃移窗隔断,两个空间并不完全阻隔,书房北窗的光线可以通过玻璃移窗到达次卧,同时百叶窗帘很好地保障了两个空间的私密性,灵活使用。
在书房的另一侧,设计师借用了厨房墙面部分空间(在平面图中可以看到),做了内嵌的满墙书柜,在不大的书房区域,又增加了不少收纳的空间。
在书房靠近门的一角,设计师找人定制了玻璃立体展示柜,用于男主人收藏自己喜欢的手办,这也是最初的设计需求之一。
次卧功能主要是用于满足夫妻二人的父母偶尔过来居住,以及未来小孩的房间使用。在不大的次卧空间里,如何放下床面、衣柜、书桌以及电子琴是个麻烦的问题。就这个问题,设计师采用了榻榻米的形式来替代传统床的放置,充分释放走道空间。榻榻米与衣柜整体设计,同时底部全是可拉开的收纳柜,储物空间又得到了很好的保障。
榻榻米延伸过去,与书桌做整体错落设计,这样错落的高低设计,在视觉上空间不会因此而断开,关联性更强。书桌靠窗,作为未来孩子的学习阅读空间使用。
家中一定有一处,可以让心灵有所寄托的地方。主卧就是这样一个空间,不需要多复杂,但一定是舒适的,温暖的。
整体配色以黑白灰加原木色系为主,设计师首先选了暖色调几何照明床头灯,其次选了高级灰的墙面颜色来强调照明质感,最后选用原木色系床头柜、床以及地板来柔化原本整个空间硬朗的视觉感受。
利用主卧阳台空间,设计师利用北欧网红元素为女主人设计了一面梳妆台,作为主卧里的一个独立空间来使用。
大家都知道北欧风格离不开小方砖的铺贴,但是贴小方砖的人工费用让很多业主望而却步。张龙华设计师利用600*600的大砖,在上面直接开槽并填缝,直接铺贴在干区墙面上,同样达到了马赛克砖的效果。每位业主装修预算都是有限的,在有限的预算里如何达到同样甚至更好的效果,就比较考验设计师功底了。
有别于传统U型厨房,厨房区域加上过道转角,呈L型分布。进门映入眼帘就是橱柜与地砖,在厨房墙面一侧满做了一面原木色系橱柜,内嵌储物空间非常充足!地面采用小花砖铺贴,在日常生活使用上更具趣味一些。
客服
消息
收藏
下载
最近























