查看完整案例

收藏

下载
原始户型图
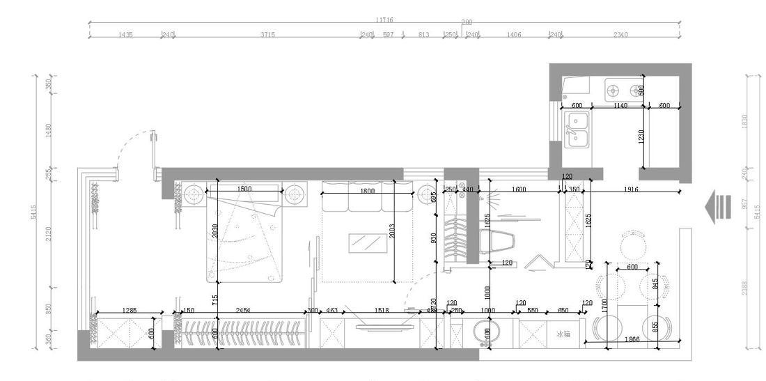
平面布局图考虑到两位老人双休的时候会帮忙带带小朋友,所以卫生间做了干湿分离。增加卫生间的使用率。餐桌采用可折叠餐桌。休憩的时候一家人过来吃饭聚餐。
在有限的空间中尽可能多的设置储物空间。
家居尺寸图
进门做一个鞋柜,用于餐厅和鞋柜的共同使用。
考虑到餐厅装柜体空间不足,效果也不好看。挂机的冷媒管到室外机太长。所以做了一拖二的中央空调作为取暖制冷工具。同时也可以掩盖走廊的大横梁。
第一次放房子中也是晴天,但是由于室内木地板颜色比较重,还有玻璃门以及厚重的窗帘。室内灯光也不是很亮,所以给人一种压迫的感觉。
厨房采用上下柜门跳色处理。白色的墙地砖视觉上可以扩大空间。白色的上柜门弱化视觉压迫感。木色的下柜门与整个空间统一的同时,可以将视线引导至下面以及台面上。
将卫生间镜像后,拆掉阳台移门,将室内阳台作为卧室一部分使用,空间连为一体,瞬间开阔。
镜像后的卫生间,原有的墙角下水管道不可移动。利用墙体做了凹凸柜处理,增强储物。
沙发旁边储物柜做开放格处理,放一些旅游纪念品,小孩子奖杯奖状等,可作为展示空间使用。
阳台区域,地面将木地板通铺过来。拆除哑口套以及玻璃移门。顶面采用点光源照明(明装单头射灯)。温暖的光斑加上白色的乳胶漆以及原木色的地板和家居,衬托整个空间温暖明亮。
餐厅照明采用点光源照明。9W的3500K明装单头射灯。光斑照射下菜品更可口。温暖的光线在暖色地板的漫反射下,盈满整个区域。
客服
消息
收藏
下载
最近
























