知末
知末
创作上传
VIP
收藏下载
登录 | 注册有礼
知末案例   /   家装空间   /   样板间

现代风格 85㎡样板房设计 | 精致布局展现生活美学

2020/02/26 00:00:00
查看完整案例
微信扫一扫
收藏
下载
现代风格 85㎡样板房设计 | 精致布局展现生活美学-0
客厅
现代风格 85㎡样板房设计 | 精致布局展现生活美学-2
主卧
现代风格 85㎡样板房设计 | 精致布局展现生活美学-4
父母房
现代风格 85㎡样板房设计 | 精致布局展现生活美学-6
儿童房
现代风格 85㎡样板房设计 | 精致布局展现生活美学-8
厨房
现代风格 85㎡样板房设计 | 精致布局展现生活美学-10
洗手间(主卫)
现代风格 85㎡样板房设计 | 精致布局展现生活美学-12
洗手间(客卫)
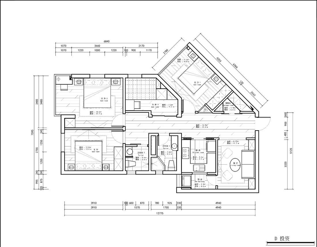
现代风格 85㎡样板房设计 | 精致布局展现生活美学-14
平面方案
南京喵熊网络科技有限公司 苏ICP备18050492号-4知末 © 2018—2020 . All photos and trademark graphics are copyrighted by their owners.增值电信业务经营许可证(ICP)苏B2-20201444苏公网安备 32011302321234号
客服
消息
收藏
下载
最近