查看完整案例


收藏

下载
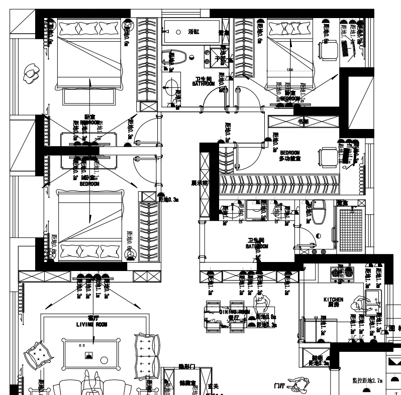
平面布置图
门厅增设了玄关通柜,现代精致的线条美感,打破了灰色背景的单调,入户的第一眼,便留下美好的印象。
餐厅和西厨房吧台是结合在了一起,做了开放式的格局,餐桌椅靠着厨房的岛台来摆放,橱柜、吊柜加上岛台柜,储物空间非常充足。
背景墙的灰色调,一张咖色沙发搭配软装形成反差色,与阳台连成一体,美观实用
客餐厅中间增加了女主人的专用鞋类储物间,形成黄金分割,动线通畅,保证了客餐厅的空间关系完美互动
阳台的立体灯线,三面包围的木色饰面完美解决了横梁结构和吊顶的关系处理,空间感更加时尚现代
定制入墙玄关柜,无拉手设计,简洁大方。柜体中间和底下留空设计,加上人性温暖的灯光设计,保证实用性的同时,更有家的归属感。
石材,原木,铁艺的材质反差形成了精致的多功能吧台餐厅区域,满溢着业主对生活的热爱之美
主卧室的床头背景墙铺贴了带纹理的壁纸,搭配浅灰色的床品和床,整体给人一种轻松、舒适的感觉。床头两侧对称的床头灯带来精致的感觉。
次卧的设计会更为素雅一些,整体以灰色为主,搭配白色的床品和绿色的窗帘,在角落里放着一个别致的灯,更是创意时尚。
儿童房采用饱和色增加儿童对色彩的敏感,灰色床品又能让小朋友静静地思考....
黑色的大理石瓷台面配亚光的橱柜,让人感觉干净而且更有质感。
客服
消息
收藏
下载
最近














