知末
知末
创作上传
VIP
收藏下载
登录 | 注册有礼
知末案例   /   家装空间   /   平层   /   周宇群

简约随心,原始结构与平面布局的完美融合

2016/10/10 00:00:00
查看完整案例
微信扫一扫
收藏
下载
简约随心,原始结构与平面布局的完美融合-0
原始结构图
简约随心,原始结构与平面布局的完美融合-2
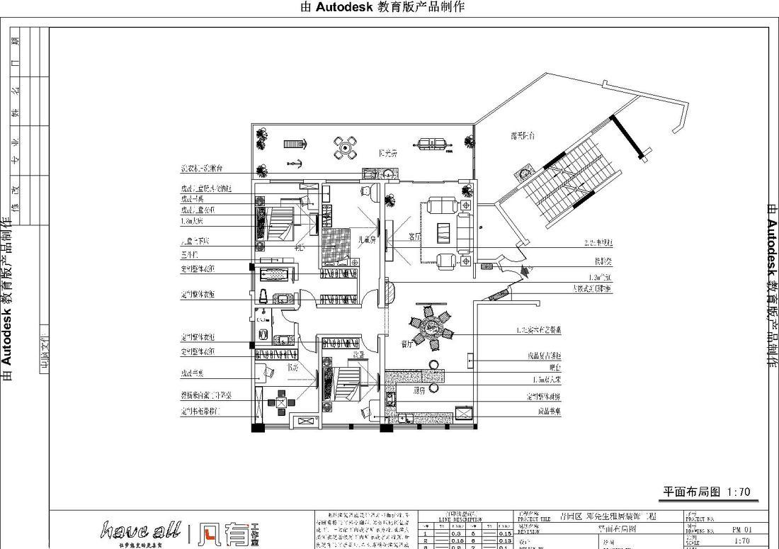
平面布局图
简约随心,原始结构与平面布局的完美融合-4
效果图
简约随心,原始结构与平面布局的完美融合-6
效果图
简约随心,原始结构与平面布局的完美融合-8
效果图
简约随心,原始结构与平面布局的完美融合-10
效果图
简约随心,原始结构与平面布局的完美融合-12
实景照片
简约随心,原始结构与平面布局的完美融合-14
实景照片
简约随心,原始结构与平面布局的完美融合-16
实景照片
简约随心,原始结构与平面布局的完美融合-18
实景照片
简约随心,原始结构与平面布局的完美融合-20
实景照片
南京喵熊网络科技有限公司 苏ICP备18050492号-4知末 © 2018—2020 . All photos and trademark graphics are copyrighted by their owners.增值电信业务经营许可证(ICP)苏B2-20201444苏公网安备 32011302321234号
客服
消息
收藏
下载
最近