查看完整案例


收藏

下载
客厅选用了原木色和白色做套色的家具,灵动而活泼,营造温馨舒适的氛围,设计师选用大量自然元素,运用墨西哥的龟背竹和千年木植物打造本真空间。让整个客厅空间气场十足,同时放慢融洽的生活。
电视墙线条设计,用少许白色与莫兰迪灰搭配更添一份纯净简洁,沙发背景的挂画采用莫兰迪彩色系做一个调色,让客厅整体不单调,整体给人一种回归自然的感觉。
客餐厅是一个整体,原木的气息从客厅继续蔓延到餐厅,使整个空间达到统一。精心设计的餐厅边柜也是设计师的匠心之作,一般封闭柜门吊柜,吊柜下面做地台加上灯光设计,一半开放装饰架,增加了整体空间的层次感。
还有一面的餐厅墙刷白灰色的乳胶漆,墙上挂一个西班牙nomon品牌的Barcelona时钟,简单的结构却能解决墙面的单调。
L型的橱柜设计,流畅的操作台面。灯光的设计占主导,因屋主父母年纪大了,所以将厨房的灯光采用6000k的色温的正白光。让厨房更明亮。
卫生间墙面采用意大利IMOLA的BIANCO系列的柔光砖,搭配地面的灰色砖恰到好处。因为空间不是很大,所以将浴室柜的镜面柜做通,通过镜面的反射将卫生间放大。3000k的色温的暖光灯,起夜进卫生间不会刺眼。
主卧选用灰色调铺垫沉稳大气的基调,衣柜选用白色中和空间的深沉感,原木床头柜和床头1米2高护墙板不显突兀,加上暗藏灯光设计反添一份生活感。加上床头的装饰画更是为主卧增添一个色彩。
客卧整体色调偏浅,全房采用定制,合理的布局放大活动空间,浅灰与原木色搭配营造呼吸感,简约的同时更具格调。顶面的线条灯给空间不一样的氛围。
千鸟格的毯子,也是搭配的刚刚好。
白色的百叶窗让卧室更具通透性,同时也与白色柜门形成呼应,更有一种舒适的感觉。
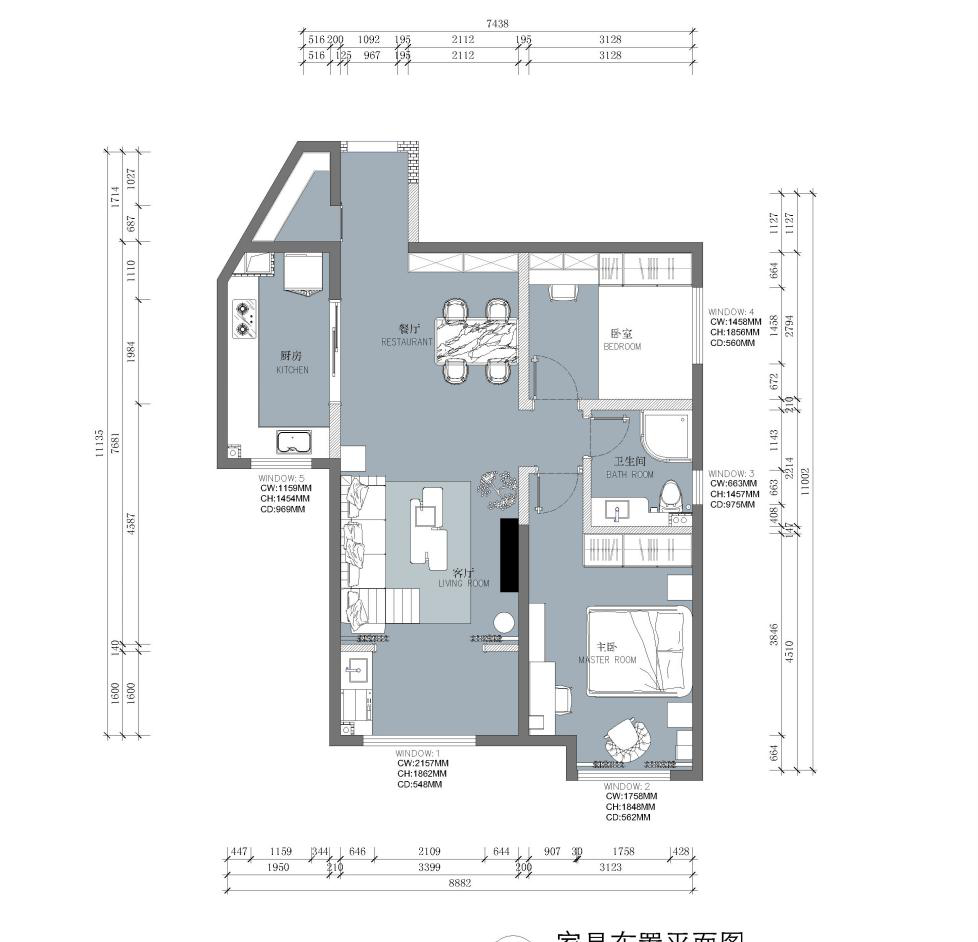
平面方案:
1.进门右手边的小杂物间将里面做成做成柜体不需要柜门,为了保证里面的空间,将门做成谷仓门;
2.业主家的阳台相对比较宽大,可以将一边的空间留给业主的父亲放缝纫机,阳台整个就变成业主父亲的工作空间;
3.北边的房间,业主的卧室如果按照常规的家具布置,整个空间很难实现,所以将整个房间进行全屋定制,将书桌,衣柜做一排,200MM高度的地台式床,虽然不能像榻榻米那样有很大的储物空间,但是比榻榻米更为精致,不会显得笨拙,这样房间还能剩下足够的活动空间。
客服
消息
收藏
下载
最近









