查看完整案例

收藏

下载
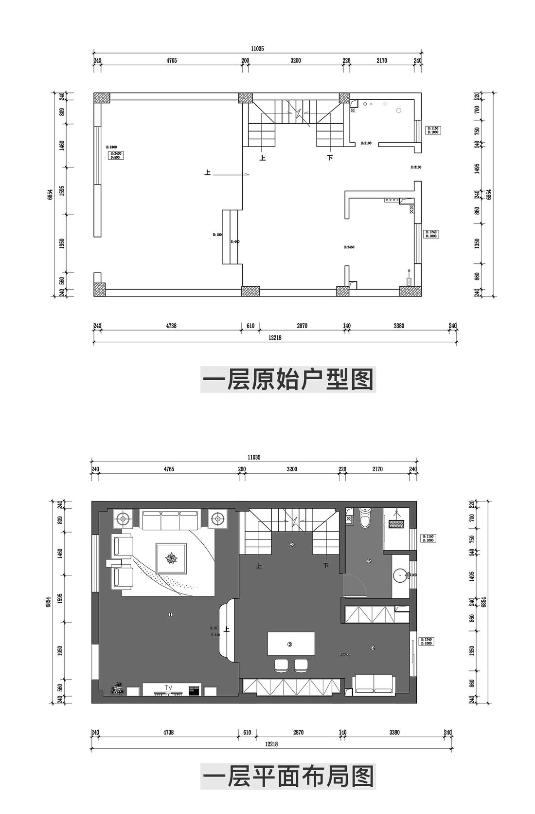
一层主要功能区:
1.客厅
2.休闲区
3.楼梯间
4.门厅
5客卫生间
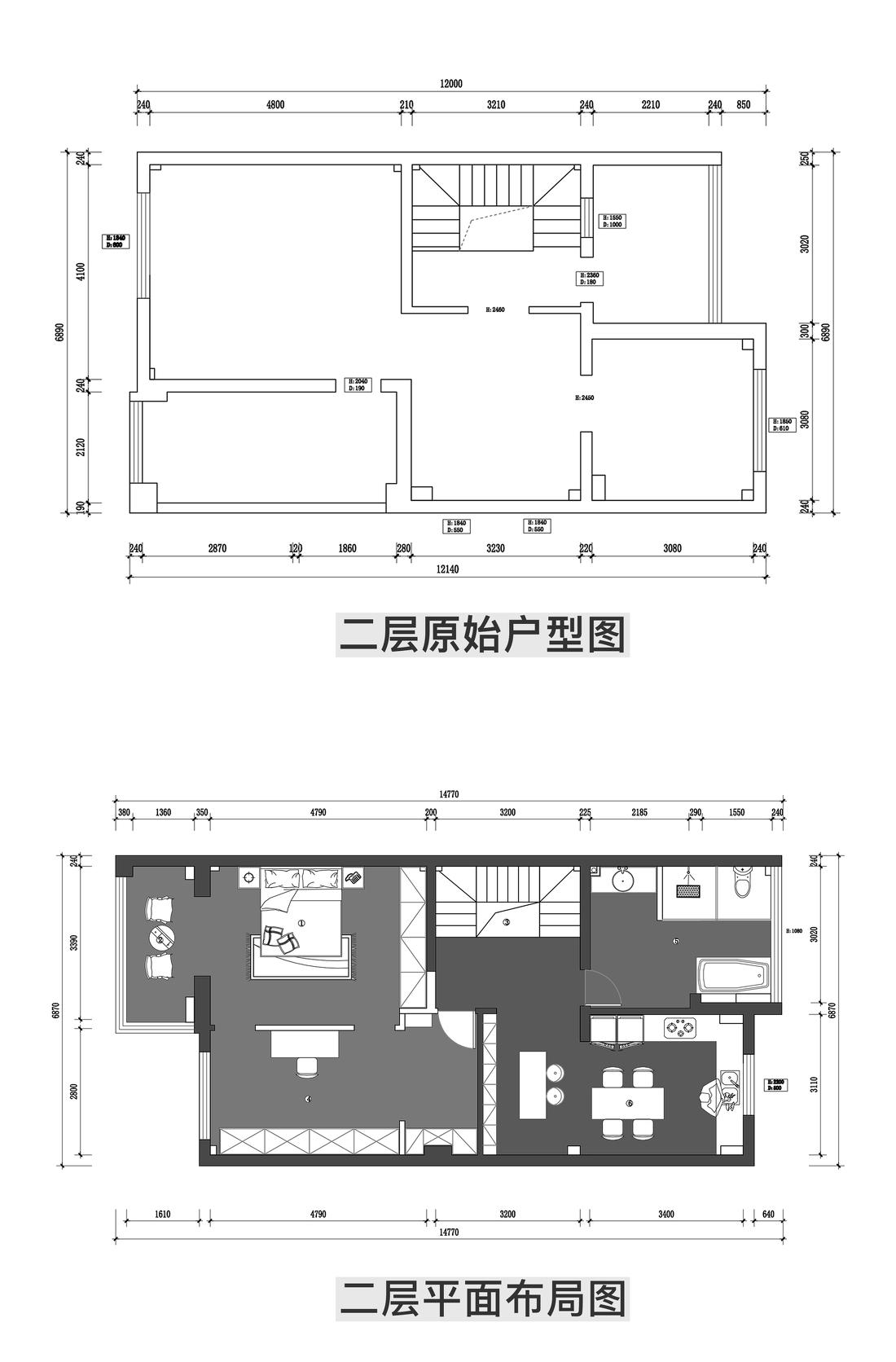
二层主要功能区:
1.主卧
2.阳台
3.电梯间
4.书房
5.客卫生间
6厨房
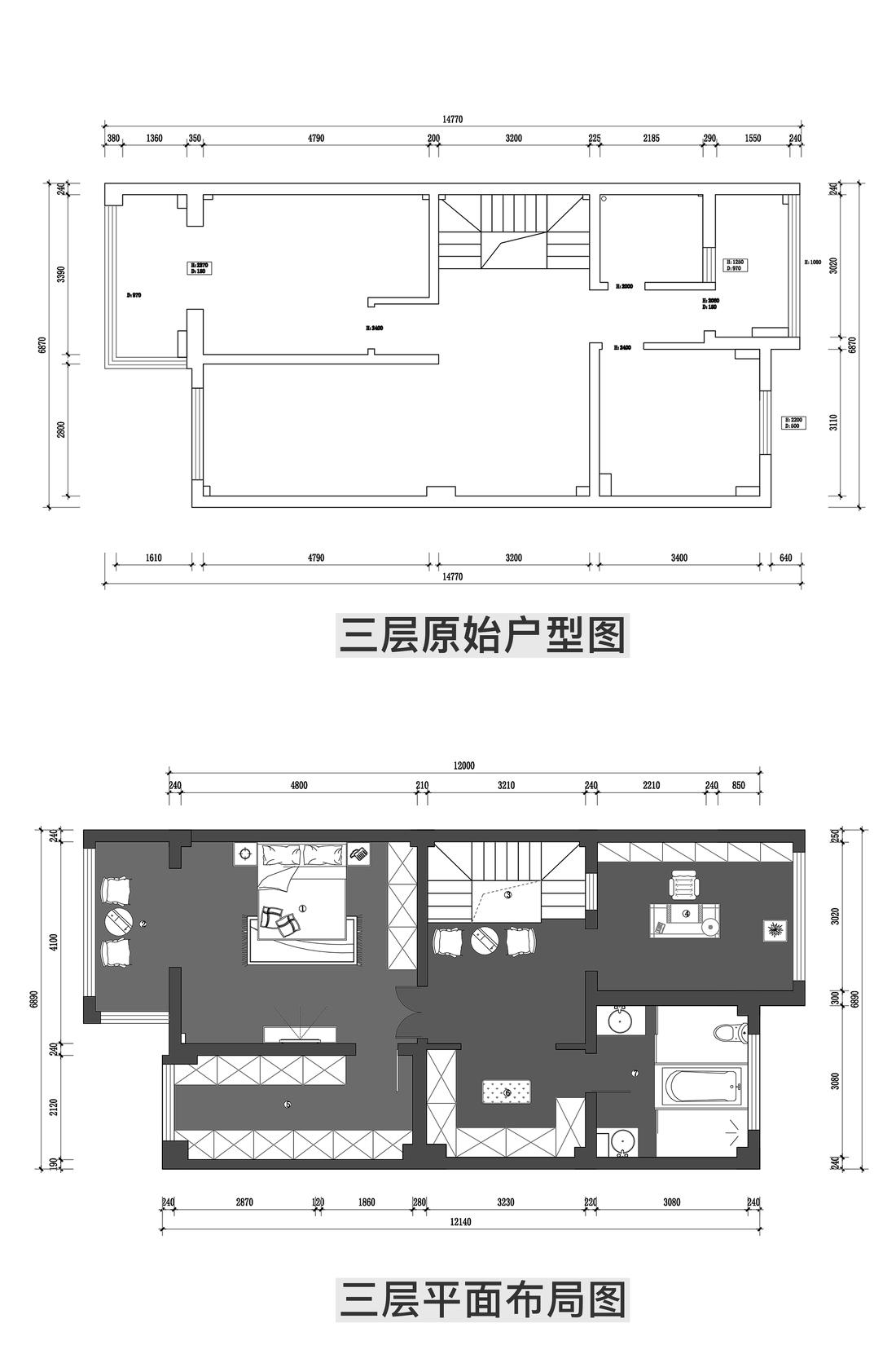
三层主要功能区:
1.主卧
2.阳台
3.电梯间
4.书房
5.储物间
6.衣帽间
7.主卫生间
色调深咖木纹和白色粗狂的大理石纹理,把内涵和品质演绎的淋漓尽致。
大平顶的无主灯设计,灯光层次细腻体感舒适。
电视背景墙和沙发背景墙,同一款式,左右呼应,强调空间的整体性。
灰色纱帘若隐若现布艺沙发搭配白色大理石茶几,一面温厚,一面硬朗。
软装搭配,做到风格和色调的统一,紧凑而有力。
眼前的一切透过纱幔留下了光影斑驳,好一副“水墨画梳窗”。
黑色和原木是主导色调,黑色的硬朗和原木的自然形成鲜明对比,相得益彰。
材质以实木为主,厚重的质地感无形中提高了生活品味。
异形吊顶打破传统,粗矿格子和多种灯光布局呈现出错落有致的空间视觉。
背景墙三分法,白墙彰显简约,到顶储物柜满足储物需求,错隔板放书籍、摆件。
地面白色大理石纹理,整个空间保持同一。
推开花园的玻璃门是满眼的绿色,“朵朵花开淡墨痕”。
二楼餐厅厨房一体设计。
餐厅是西厨区和用餐区的结合,定制深灰的柜体和高餐台,迎合业主的喜好。
墙面是白色裸砖,色彩统一形式创新。
开放式厨房
平顶点光源整洁通透才是厨房的最佳状态。
岛台设计,灰色柜体搭配白色台面,浓淡总相宜。超大容积,杂物收纳轻松有序。
操作台,动线合理,嵌入式冰箱烤箱隐化视觉平面。
“水墨丹青,浓淡相宜,宛若画中游”。
深灰柜体延伸整个走廊,黑色门套分割空间,幽邃的格调彰显主人内敛气质。
中间的隔墙,一侧做梳妆台,另一侧变身电视墙,一墙多用。
超大双人床,毫无束缚享受睡眠时间。
双层窗帘,彩光委婉,灰色的浪漫超脱媚俗。
夜晚讲练“皎皎何其多,独时吾自有”。
三楼卧室,不拘泥于色彩造型,注重质朴的身心感受。
整排书柜,科学计算拿捏高度,便于拿取。异形书桌平添心意,给自我修行的旅途添几丝烟火气息。
客服
消息
收藏
下载
最近






























