创作上传
VIP
收藏下载
登录 | 注册有礼
知末案例
/
华云艺舍空间设计
新时代智能生活馆 | 极简现代设计打造智慧生活空间
2020/04/02 00:00:00
查看完整案例
微信扫一扫
收藏
下载
分享
你可能还喜欢
换一换
『跨越空间的设计』第10届艾特奖获奖作品赏析(中)
尚嘉成都店
现代简约住宅空间设计
莫斯科首家精品成人店,颠覆传统设计
Madrid 地标设计,融合传统与现代的旅游礼品店
无影空间设计打造乔威六安霍邱苏宁店
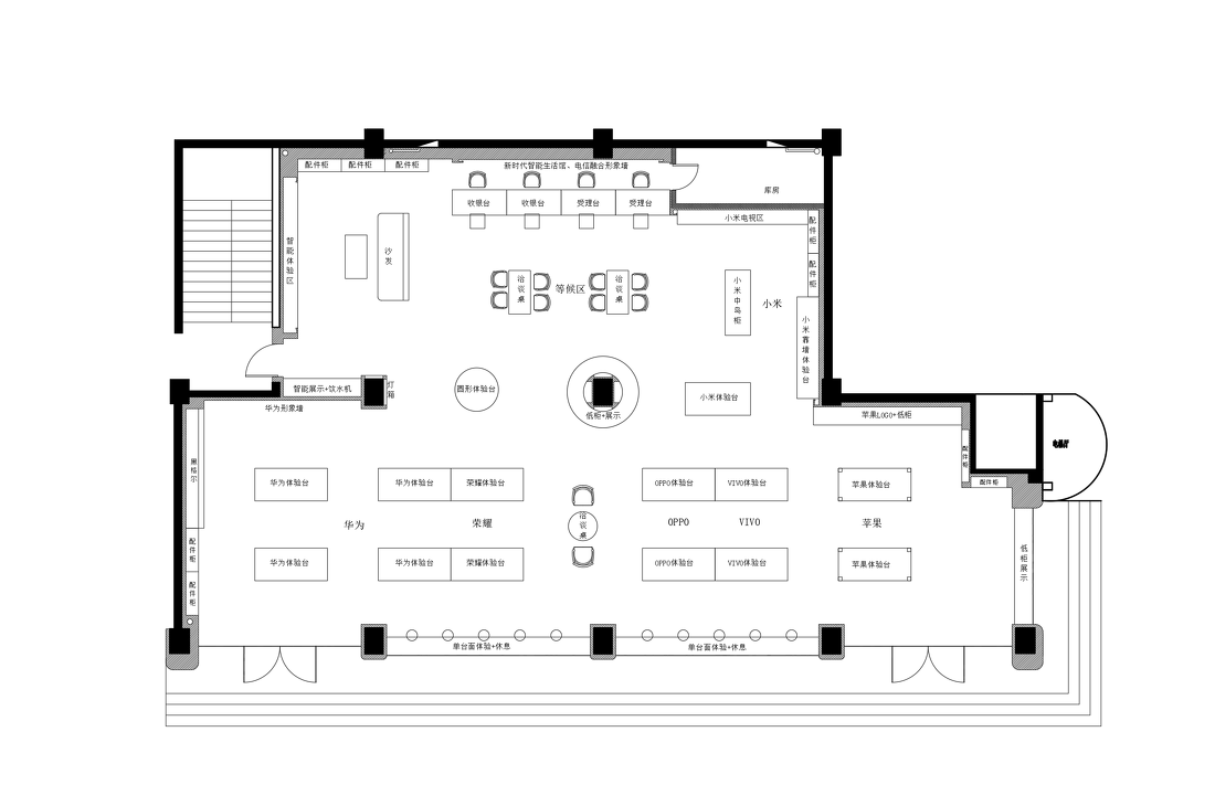
平面布局图
凤凰城天悦豪华住宅设计
西安旭麟酒业现代中式设计丨中国西安
立丰-联盟新城
宝格丽天悦华府
建协集团办公室设计
昆明澜庭私宅
西安逸翠园私宅定制丨中国西安
现代简约私宅,打造舒适生活空间
骊山花城叠拼,打造多功能居住空间
鼎正 中央领郡
长安壹品家装
西安万达联想 3C 服务中心——现代简约风格打造舒适购物环境
客服
消息
收藏
下载
最近