查看完整案例

收藏

下载
一进家门,映入眼帘的是一家人的鞋子,虽然摆放的整整齐齐,但是在视觉上难免还是显得杂乱。
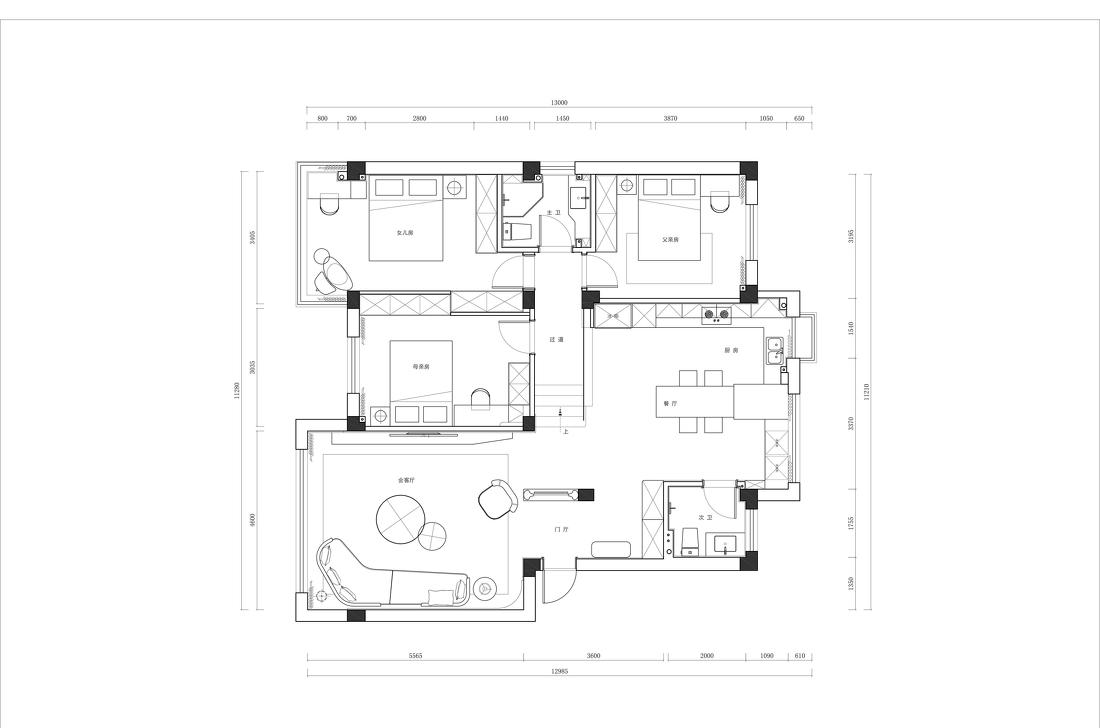
增加鞋子的收纳空间,设计师对原来的次卫进行改造,把面盆、马桶、淋浴整合在一个空间内,将原来单独放置面盆的空间改为换鞋区,给出入家门带来极大便利。
镜子一侧是一面厚柜子,除了放鞋子,还可以放一些回家换下来的衣服和包包。
添加玄关,起到缓冲作用,也化解了入户门正对卫生间的尴尬。做的是通透的造型,而不是将一整面挡死。
其实房子原本的采光是很不错的,但全屋使用的深色地板,让整个家显得昏暗、局促。所以只要换个浅色,就能让整体看起来更加敞亮。
设计师将厨房、餐厅、客厅一体化,巧妙地化解了所有问题。可推拉式的餐桌设计,亲朋好友偶尔来聚聚时,就完全不用当心位置不够啦~
所以很多物品只能通过各种使用收纳盒,堆积在外。这样不仅不方便拿取,还显得杂乱。
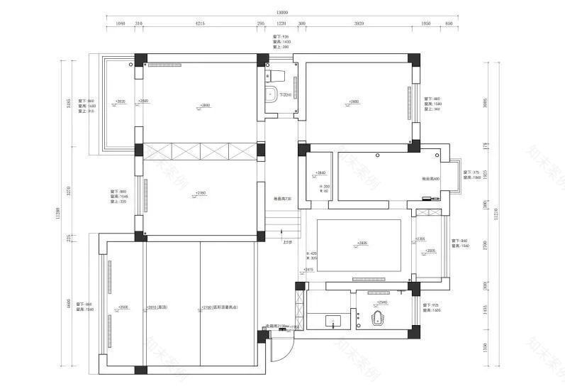
根据屋主的需求,父亲和母亲的房中都要放一台电脑,以供平时娱乐,再加上储物需求,看看我们的设计师是如何做的吧~
改造需求:①父亲和母亲房需要各安置一台电脑,强调简洁质感,色彩不浓烈;②女儿房布置不设限,需要一个写字台方便在家中办公;③需要增加收纳空间。
改造亮点:①敲掉大部分能拆的墙体,扩展空间,让厨房和餐厅联通,改造成餐厨一体,形成通透的空间感;②设置隔挡、玄关,使其自然形成一个换鞋区,并形成一种迂回的行动线,巧妙地将空间进行了划分。③添加了大量储物柜,同时也满足了屋主的所有需求。
客服
消息
收藏
下载
最近
























